EasyManua.ls Logo

Yamaha FJR1300A(D) - Page 564

Yamaha FJR1300A(D)
662 pages
Print Icon
To Next Page IconTo Next Page
To Next Page IconTo Next Page
To Previous Page IconTo Previous Page
To Previous Page IconTo Previous Page
Loading...
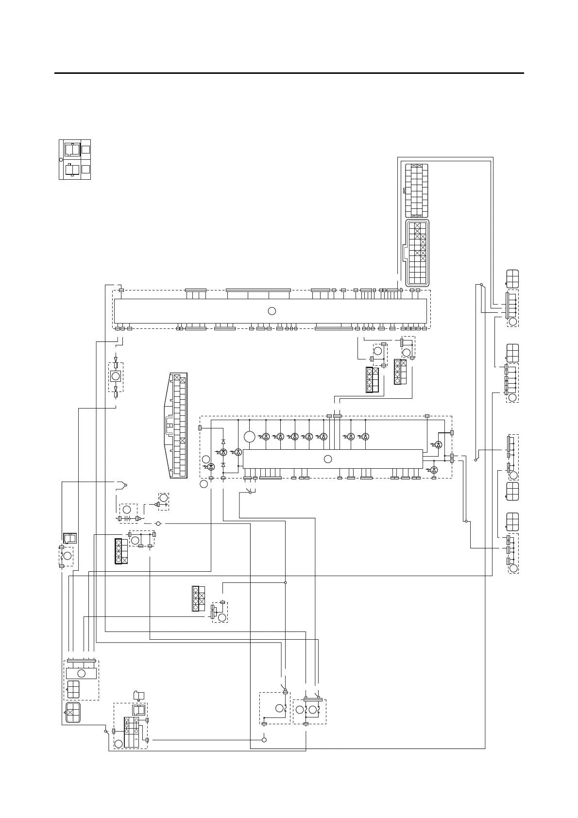
IMMOBILIZER SYSTEM
8-115
EAS27640
IMMOBILIZER SYSTEM
EAS27650
CIRCUIT DIAGRAM
P
ON
OFF
A
(B)
(B)
Br/L
R
B/W
Y/L
R/W
G/B
B
B
Lg
R/G
R
B
B
B
B
B
R/G
R/W
RR
B/W
B/W
B/W
B/W
B/W
B/W
B/LB
B/WB/L
B/W
B/W
Y/LY/L
R/W
Y/L
Br/W
R/G
R/G
R/G
G/B
B/W
B/W
Br
/L
Br/W
R/G
R/G
R/W
R/W
RR
R
R/W
R/G
L/B
L/R
L/R
L/R
L/B
L/B
L/B
L/R
R/W
B
Y/LLgR/W
R/G
B
R
Br/L
R
R
A B
A
R
Br/L
R/GR/GR/G
R/WR/W
(B)
O/GG/Y
L/YL/B
Gy/RY/W
B
B
GyO
P
G/B
R/B
W/RW/R
Lg/RY/RR/L
L
B/W
O/BBr/RBr/WR/W
(B)
Y/R
B/R
B/L
B/LB/L
Y/L
B/YY/GL/YGy
W/Y
B/WP/WW/GLg/L
Lg/B
PLL
L/RR/LW/B
W
BB
W
O/W
Br/LBr/W
G/L
L/W
L/B
Gy/WG/W
B/WR/G
Y/L
G/BR/W
(B)
R/WW/LW/GW/RG/WL/RL/BG/BG/RR/GR/GR/GCh
Br/BBr/WBr/BBr/WB/RL/WY/WB/YP/WP/BBr/YW/YW/BB/WB/W
P
Dg
Sb/W
YW
(Gy)
B
B/G
B/G
B
(B)
B/WB/WB/W
B/WB/WB/W
BBB
B
B/L
B
B
B/WB/W
B/WB
B/W
B/WB/W
B/WB/WB/W
B/L
L/RL/RL/R
L/BL/BL/B
1
2
5
5
9
16
17
25
26
27
72
73
74
102
96
5
5
5
5
5
5

Table of Contents

Related product manuals