EasyManua.ls Logo

Ceia THS/21 - Integrated Systems; THS-FBB, THS-MBB, THS-FBV, THS-FBBV Without SCN Board

Ceia THS/21
210 pages
Print Icon
To Next Page IconTo Next Page
To Next Page IconTo Next Page
To Previous Page IconTo Previous Page
To Previous Page IconTo Previous Page
Loading...
3
FI002K0018v1530hUK – THS/21 Instruction manual for installation, use and maintenance
INSTALLATION
104 ORIGINAL INSTRUCTION
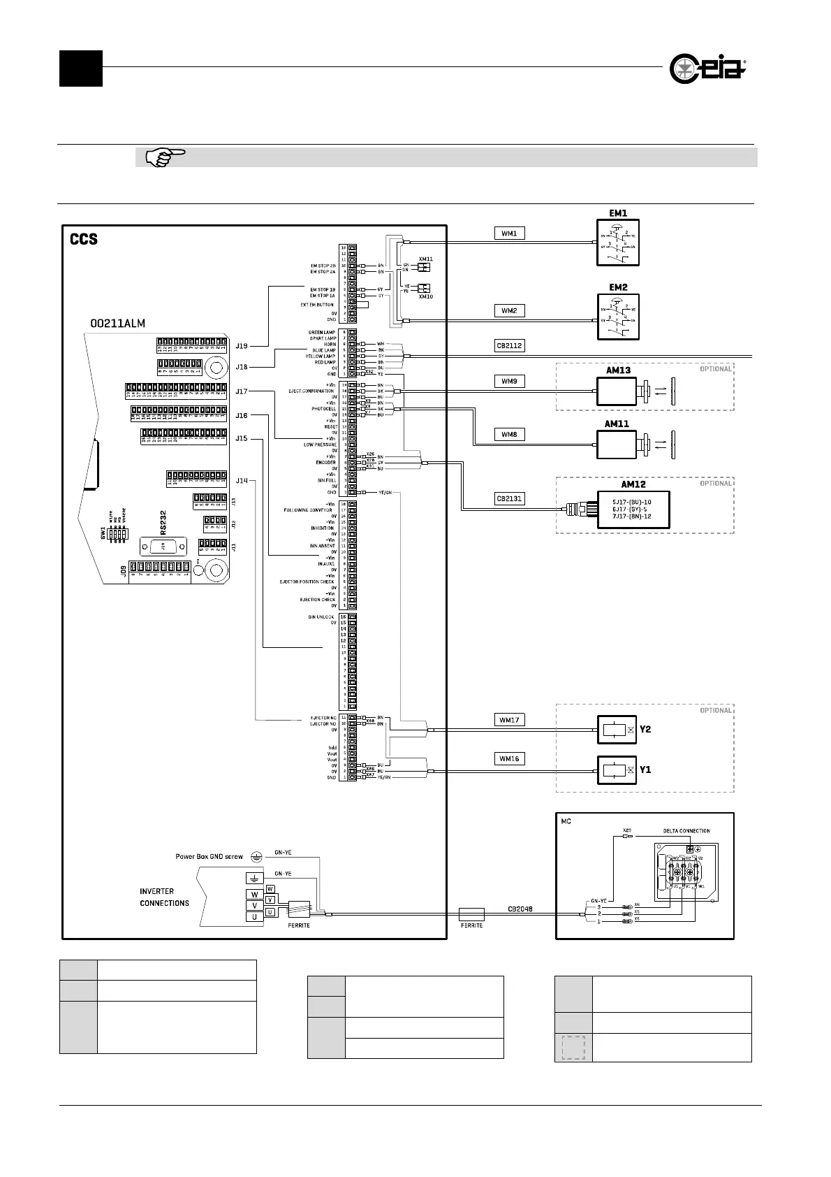
3.6.5 Integrated Systems
For CUSTOM Integrated Systems, refers to the Electric Diagram supplied with the Manual.
3.6.5.1 THS-FBB, THS-MBB, THS-FBV, THS-FBBV without SCN board
AM11 Synchronization photocell
AM12 Encoder sick
AM13
Ejection confirmation
photocell (mounted on
rejected product bin)
EM1
Emergency buttons
EM2
CCS Conveyor Control System
Y1 Ejector activation
Y2
Ejector deactivation
(not used with air blow)
MC Motor connections box
Optional

Table of Contents

Other manuals for Ceia THS/21

Related product manuals