EasyManua.ls Logo

Ceia THS/21 - Signal Cables; Pulsed-Type Noise Sources

Ceia THS/21
210 pages
Print Icon
To Next Page IconTo Next Page
To Next Page IconTo Next Page
To Previous Page IconTo Previous Page
To Previous Page IconTo Previous Page
Loading...
3
FI002K0018v1530hUK – THS/21 Instruction manual for installation, use and maintenance
INSTALLATION
62 ORIGINAL INSTRUCTION
3.1.3.2 Signal cables
- The use of shielded signal cables is recommended, with the shield connected to earth only
from the side of the power supply unit.
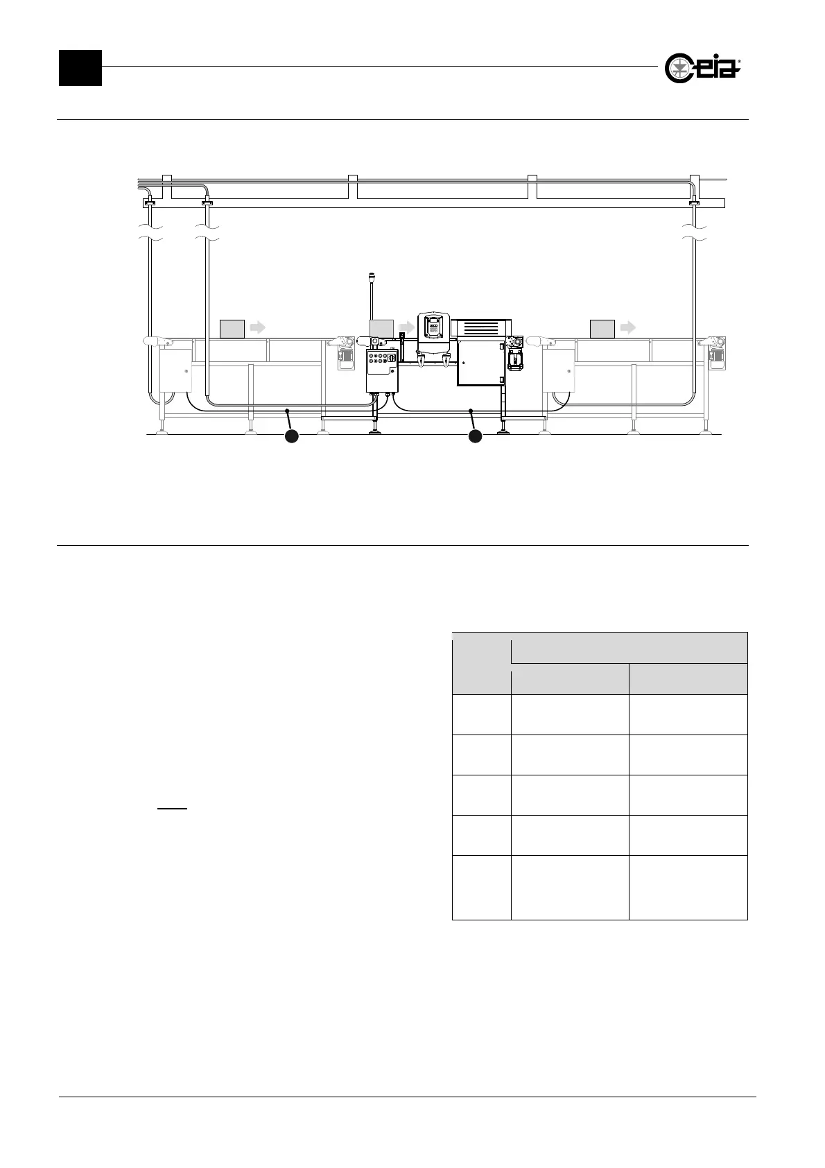
Example with a THS-RB
F: Signal cables;
3.1.3.3 Pulsed-type noise sources
- Move the Metal Detector as far away as possible from devices which might generate pulsed-
type disturbances, e.g. starting motors, inverters, electricity supply boards, electromagnetic
actuators (they should be replaced with similar pneumatic devices), fluorescent lights and
related starters (where possible, replace them with a filament bulbs), AC/DC power supplies
or UPS.
- Provide the electromagnets, remote control
switches and DC motors with adeguate
dampening circuits to attenuate any electrical
phenomena, as a result of the device
switching operations.
- Keep the encoder and its cable at a distance
of at least 2 x DH from the Probe aperture.
- Keep a minimum distance between the Metal
Detector and the motor, as indicated in the
table based on the power of the motor. Where
possible, AC motors should be used rather
than DC motors.
- If they are installed near the Metal Detector,
the motors should be screened with
cylindrical steel (non-welded) enclosures no
less than 2 mm thick.
Power
(HP)
Minimum distance
THS/MN21 Other THS models
0,5
5 x DH
3 x DH
1
6 x DH
4 x DH
2
8 x DH
5 x DH
3
10 x DH
6 x DH
20
15 x DH
(10 x DH if screened)
10 x DH
(6 x DH if screened)
- Provide each inverter with EMI filters at their infeed, selected according to the inverter
manufacturer's recommendations.
- Provide the connection cable to the motor with a ferrite to be placed near the inverter, passing
one or more coils of the phase conductors through the ferrite itself, according to the inverter
manufacturer's recommendations.
FF

Table of Contents

Other manuals for Ceia THS/21

Related product manuals