EasyManua.ls Logo

Ceia THS/21 - Ths-Mbr

Ceia THS/21
210 pages
Print Icon
To Next Page IconTo Next Page
To Next Page IconTo Next Page
To Previous Page IconTo Previous Page
To Previous Page IconTo Previous Page
Loading...
2
FI002K0018v1530hUK – THS/21 Instruction manual for installation, use and maintenance
DESCRIPTION
46 ORIGINAL INSTRUCTION
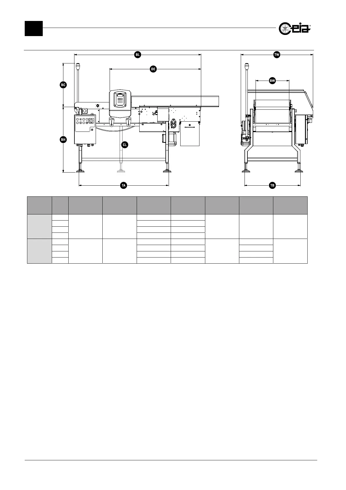
2.6.4.5 THS-MBR
BL BW BH TA TB TW BC DE CL
1700
300
875
1
1205
450 875
598 1330
450 600 1025
600 750 1175
800 950 1375
2000
300
875
1
1505
450 875
591
1587
450 600 1025 1582
600 750 1175 1490
800 950 1375 1490
Not available;
Available;
1
±75; Dimensions in mm

Table of Contents

Other manuals for Ceia THS/21

Related product manuals