EasyManua.ls Logo

Ceia THS/21 - Proximity to Metal Structures

Ceia THS/21
210 pages
Print Icon
To Next Page IconTo Next Page
To Next Page IconTo Next Page
To Previous Page IconTo Previous Page
To Previous Page IconTo Previous Page
Loading...
3
FI002K0018v1530hUK – THS/21 Instruction manual for installation, use and maintenance
INSTALLATION
54 ORIGINAL INSTRUCTION
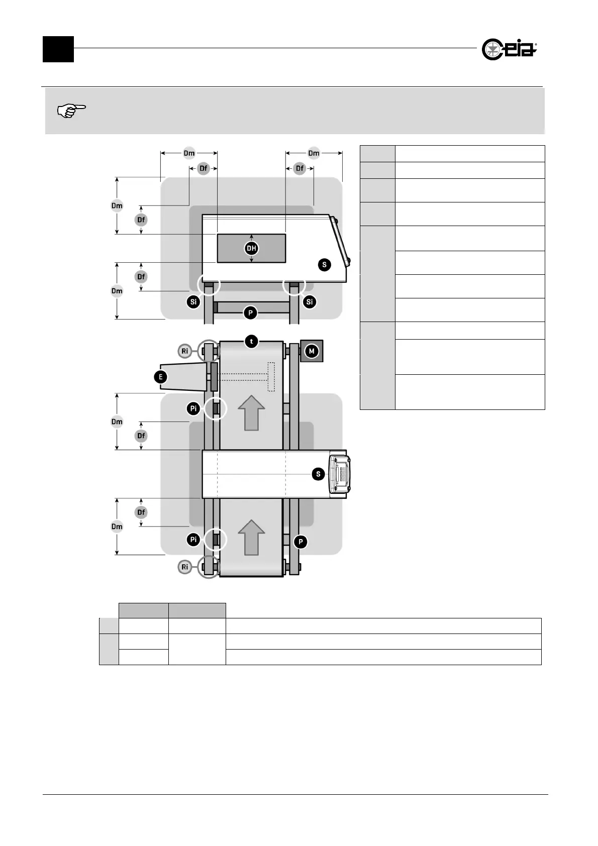
3.1.2.2 Metal structures in proximity to the Probe
The distances given are intended as a guide only and refer to a Metal Detector with default settings.
The actual distances may vary according to the Metal Detector settings and the surrounding metal structures. It is the
customer’s responsibility to ensure that the Metal Detector is really compatible with the application and the static and
moving metal parts around the Metal Detector, during the Checking the correct installation and configuration (par. 3.12).
S
Metal Detector Probe
P
Stainless steel support structure
E
Ejection system with metallic moving
parts
M
Conveyor belt motor
see paragraph 3.1.3.5
t
Conveyor belt mat
see paragraph 3.1.2.4
Pi
Insulation of the support structure (P)
see paragraph 3.1.2.3
Si
Fixing and insulation of the Probe (S)
see paragraph 3.3.1.1
Ri
Insulation of conveyor belt rollers
see paragraph 3.1.2.4.4
DH
Height of the Probe S transit tunnel
Df
Respect distance between Probe S
and any static metal masses
see table below
Dm
Respect distance between Probe S
and any moving metal masses
see table below
Installation example for a THS/21 on a conveyor belt
THS/21x THS/MN21
Df
DH
3 DH Static metal masses
Dm
2 DH
10 DH *
Small moving metal masses (i.e. piston rod)
4 DH Bigger moving metal masses
* Magnetic metal masses

Table of Contents

Other manuals for Ceia THS/21

Related product manuals