EasyManua.ls Logo

Ceia THS/21 - Ths-Fbbv; Ths-Fbv

Ceia THS/21
210 pages
Print Icon
To Next Page IconTo Next Page
To Next Page IconTo Next Page
To Previous Page IconTo Previous Page
To Previous Page IconTo Previous Page
Loading...
2
FI002K0018v1530hUK – THS/21 Instruction manual for installation, use and maintenance
DESCRIPTION
42 ORIGINAL INSTRUCTION
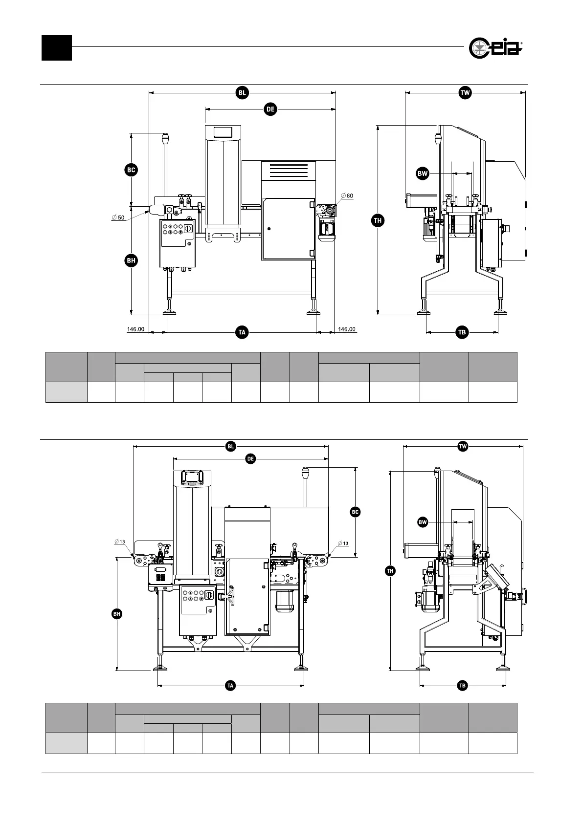
2.6.4.2 THS-FBBV
BL BW
BH
TA TB
TW
BC DE
feet
extension
castors
piston air blow
75 125 250
1500 150 875
1
1000
1
1205 660 970 765 600 1260
Not available;
1
±75; Dimensions in mm
2.6.4.3 THS-FBV
BL BW
BH
TA TB
TW
BC DE
feet
extension
castors
piston air blow
75 125 250
1500 150 875
1
1000
1
1124 660 910 705 695 1195
Not available;
1
±75; Dimensions in mm

Table of Contents

Other manuals for Ceia THS/21

Related product manuals