EasyManua.ls Logo

Ceia THS/21 - Power Supply Units; Control Power Box

Ceia THS/21
210 pages
Print Icon
To Next Page IconTo Next Page
To Next Page IconTo Next Page
To Previous Page IconTo Previous Page
To Previous Page IconTo Previous Page
Loading...
FI002K0018v1530hUK – THS/21 Instruction manual for installation, use and maintenance
3
INSTALLATION
ORIGINAL INSTRUCTION 89
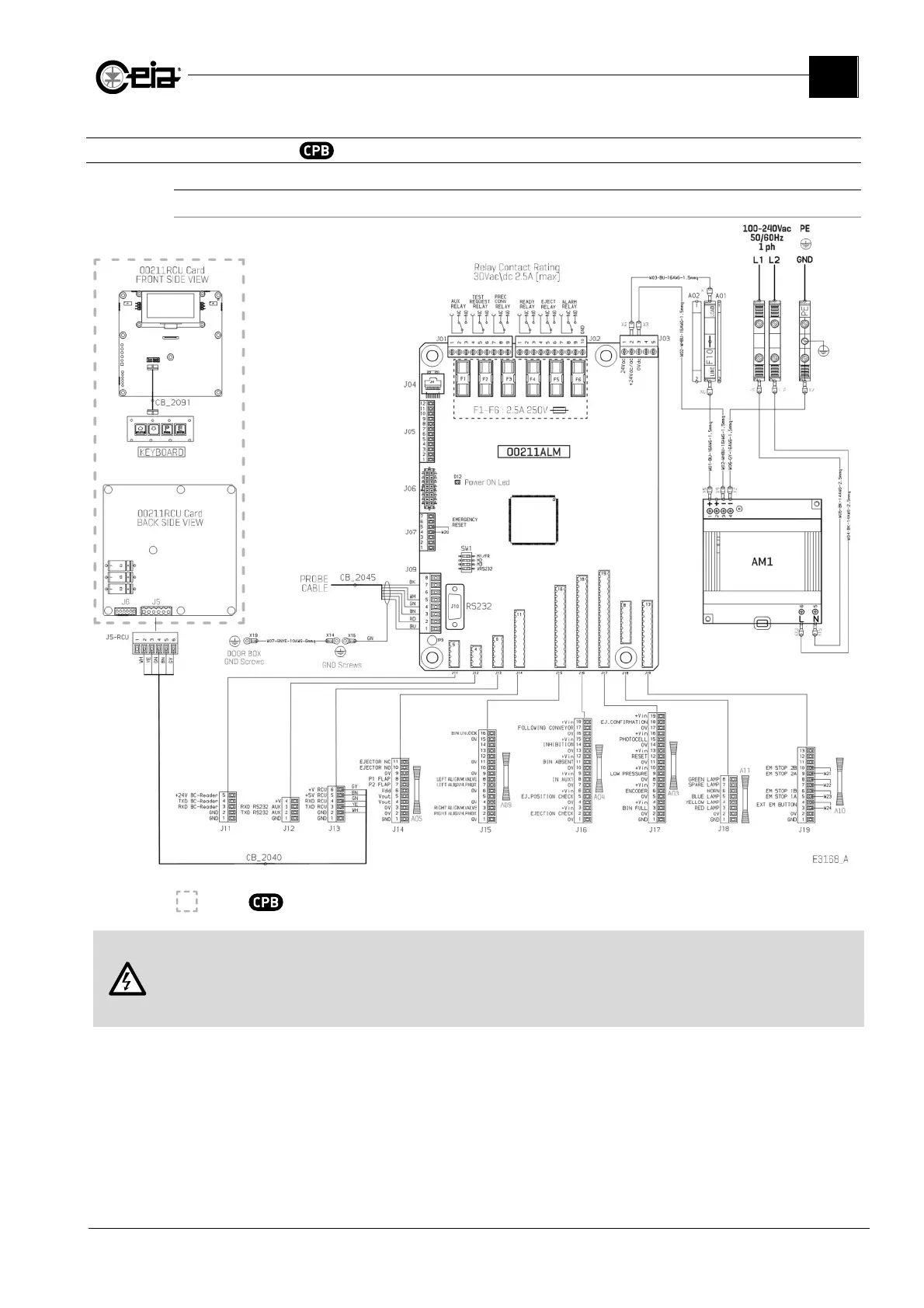
3.6.2 Power Supply units
3.6.2.1 Control Power Box
THS/xx21E
E3168A
Only on equipped with RCU card
MAIN OVERCURRENT PROTECTION TO BE PROVIDED ON
SITE
-
MAX 15 A CC CLASS FUSE FOR UL508A APPLICATIONS
-
MAX 16 A FUSE FOR CE APPLICATIONS
MAIN DISCONNECT SWITCH TO BE PROVIDED ON SITE
PROTECTION DE LIGNE A MAXIMUM DE COURANT A
INSTALLER SUR LE SITE
-
FUSIBLE CLASS CC 15A MAX
POUR APPLICATION UL508A
-
FUSIBLE 16A MAX POUR APPLICATION CE
SECTIONNEUR DE LIGNE A INSTALLER SUR LE SITE

Table of Contents

Other manuals for Ceia THS/21

Related product manuals