EasyManua.ls Logo

Delta MH300 Series - Page 129

Delta MH300 Series
1030 pages
To Next Page IconTo Next Page
To Next Page IconTo Next Page
To Previous Page IconTo Previous Page
To Previous Page IconTo Previous Page
Loading...
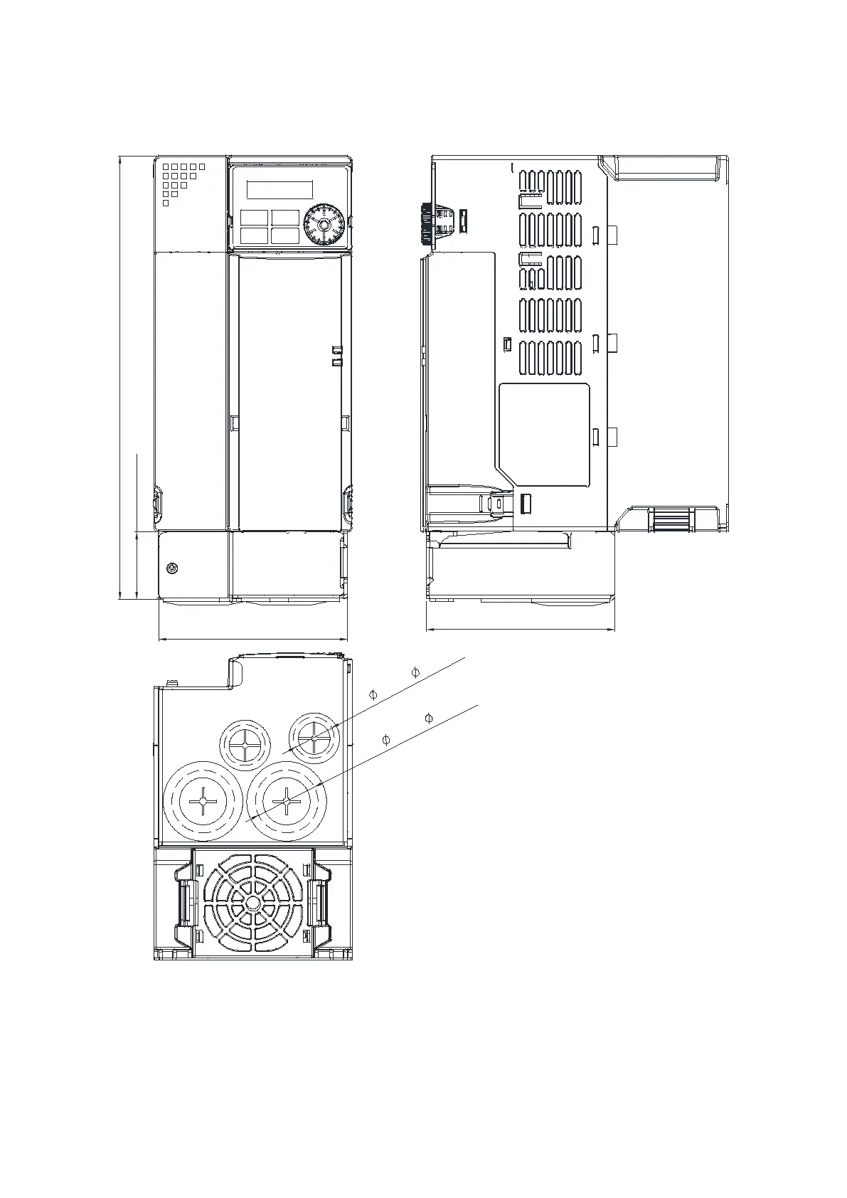
Chapter 7 Optional AccessoriesMH300
7-64
Frame D
NEMA KIT model: MKMH-CBD
Unit: mm [inch]
Fig. 7-66
103.5 [4.07]
244.0 [9.61]
103.7 [4.08]
37.0 [1.46]
34.5 [
1.36]
22.5 [
0.89]

Table of Contents

Related product manuals