EasyManua.ls Logo

Delta MH300 Series - Page 53

Delta MH300 Series
1030 pages
To Next Page IconTo Next Page
To Next Page IconTo Next Page
To Previous Page IconTo Previous Page
To Previous Page IconTo Previous Page
Loading...
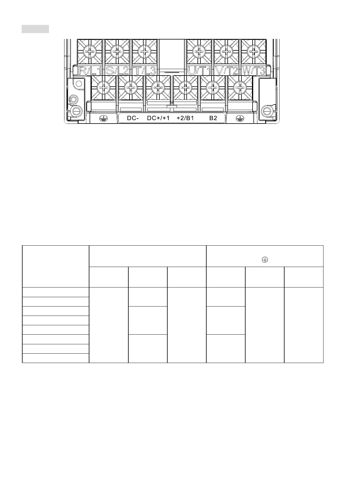
Chapter 5 Main Circuit TerminalsMH300
5-12
Frame F
IP20
If you install at Ta 50°C
above environment, select copper wire with voltage rating of 600 V and
temperature resistance of 90°C or above.
If you install at Ta 50°C
environment, select copper wire with voltage rating of 600 V and temperature
resistance of 75°C or 90°C.
For VFD65AMH23ANSAA, VFD65AMH23ENSAA models: If you install at Ta 35°C above
environment, select copper wire with voltage rating of 600 V and temperature resistance of 90°C or
above.
For UL installation compliance, use copper wires when installing.
The wire gauge is based on temperature resistance of 75°C
, in accordance with UL requirements
and recommendations. Do not reduce the wire gauge when using high-temperature resistant wires.
Models
Main Circuit Terminals
R/L1, S/L2, T/L3, U/T1, V/T2, W/T3,
DC-, DC+/+1, +2/B1, B2
Terminals
Max. Wire
Gauge
Min. Wire
Gauge
Screw &
Torque
(±10%)
Max. Wire
Gauge
Min. Wire
Gauge
Screw &
Torque
(±10%)
VFD65AMH23ANSAA
35 mm
2
(2 AWG)
35 mm
2
(2 AWG)
M6
40 Kg-cm
(34.7 lb-in.)
(3.92 Nm)
35 mm
2
(2 AWG)
16 mm
2
(6 AWG)
M6
40 Kg-cm
(34.7 lb-in.)
(3.92 Nm)
VFD65AMH23ENSAA
VFD38AMH43ANSAA
25 mm
2
(4 AWG)
25 mm
2
(4 AWG)
VFD38AMH43ENSAA
VFD38AMH43AFSAA
VFD45AMH43ANSAA
35 mm
2
(2 AWG)
35 mm
2
(2 AWG)
VFD45AMH43ENSAA
VFD45AMH43AFSAA

Table of Contents

Related product manuals