EasyManua.ls Logo

Dieci SAMSON AGRI MAX - Fork Spreader Technical Data

Dieci SAMSON AGRI MAX
358 pages
Print Icon
To Next Page IconTo Next Page
To Next Page IconTo Next Page
To Previous Page IconTo Previous Page
To Previous Page IconTo Previous Page
Loading...
24 | Technical data
312 DOCMA0000006‐UK ﴾ENG﴿ ‐ Samson FPT 3A
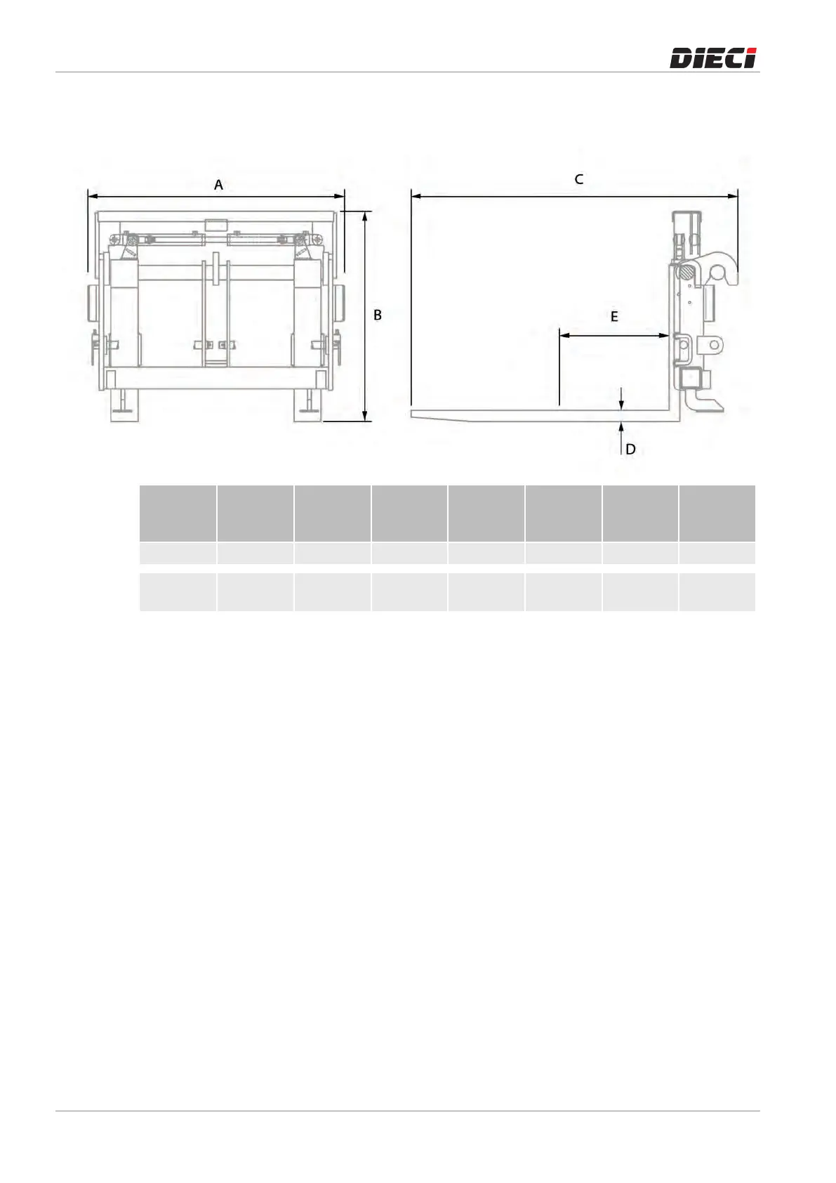
24.9 Fork spreader technical data
Code
A
B
C
D
E
Capacity
Weight
BCV8294 1420mm
(55.91in)
1150mm
(45.28in)
1580mm
(62.2in)
150x60mm
(5.9x2.36in)
600mm
(23.62in)
7500kg
(16534.67lb)
555kg
(1223.57lb)

Table of Contents