EasyManua.ls Logo

Hypertherm EDGE Pro Ti - Page 61

Hypertherm EDGE Pro Ti
166 pages
Print Icon
To Next Page IconTo Next Page
To Next Page IconTo Next Page
To Previous Page IconTo Previous Page
To Previous Page IconTo Previous Page
Loading...
EDGE Pro Ti CNC Instruction Manual 807660 61
Installation
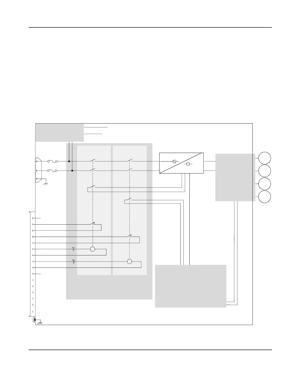
Emergency stop (E-stop) connection
Figure 23 EDGE Pro Ti safety circuit
Power distribution
board
(page 121)
250 V, 10 A
slow blow fuse
1 +24 V
2
E-Stop monitor 1A
3 E-Stop monitor 1B
7 24 V coil 1B
6 24 V coil 1A
5 E-Stop monitor 2B
4 E-Stop monitor 2A
10 Field ground
9
24 V coil 2B
8 24 V coil 2A
AC
DC
Power
good
Servo board
(page 137)
current control
and Z axis brake
60 V enable
E-stop
12 Not connected
11 Not connected
16 Cable shield
15 Not connected
14 Not connected
13 Not connected
Power good
bit
E-stop input bit
I/O board to CNC
motherboard
(page 120)
Surge and safety
relay board
(page 142)
EDGE Pro Ti CNC
Relay LS1 with
force-guided
contacts
Relay LS2 with
force-guided
contacts
Normally open
Normally open
Normally closed
Normally closed
J6
CPC
M1
M2
M3
M4

Table of Contents

Related product manuals