EasyManua.ls Logo

LEXIUM MHDA1004 - Connection Diagram

Default Icon
204 pages
Print Icon
To Next Page IconTo Next Page
To Next Page IconTo Next Page
To Previous Page IconTo Previous Page
To Previous Page IconTo Previous Page
Loading...
Chapter 5 System Operation
890 USE 120 00 89
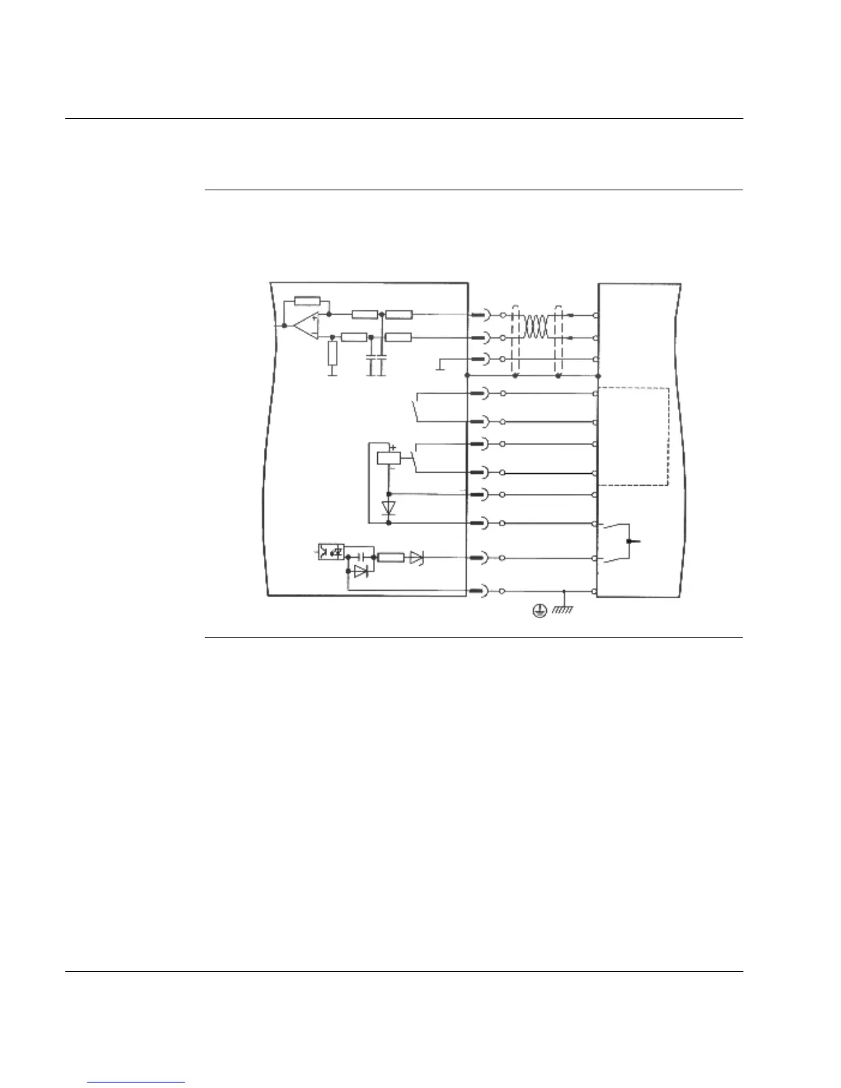
Description of the restart lock -AS-, continued
Connection
diagram
Lexium 17D control
10k
10k
10n 10n
10k
10k
4
5
1
2
3
1
2
3
4
15
18
X3
X10
3K3 6V6
Analog1 in+
Analog1 in-
Analog Com
Fault RA
Fault RB
KSO1
KSO2
KSI-
KSI+
Enable
I/O Com
+
Setpoint +/-10V
referenced to GND
GND
GND
safety-
circuit
+ 24V
referenced
to I/O-GND
Enable
AS
I/O-GND
X3
I/O-GND

Table of Contents

Related product manuals