EasyManua.ls Logo

LEXIUM MHDA1004 - Motor Choke Assembly Dimensions

Default Icon
204 pages
Print Icon
To Next Page IconTo Next Page
To Next Page IconTo Next Page
To Previous Page IconTo Previous Page
To Previous Page IconTo Previous Page
Loading...
41
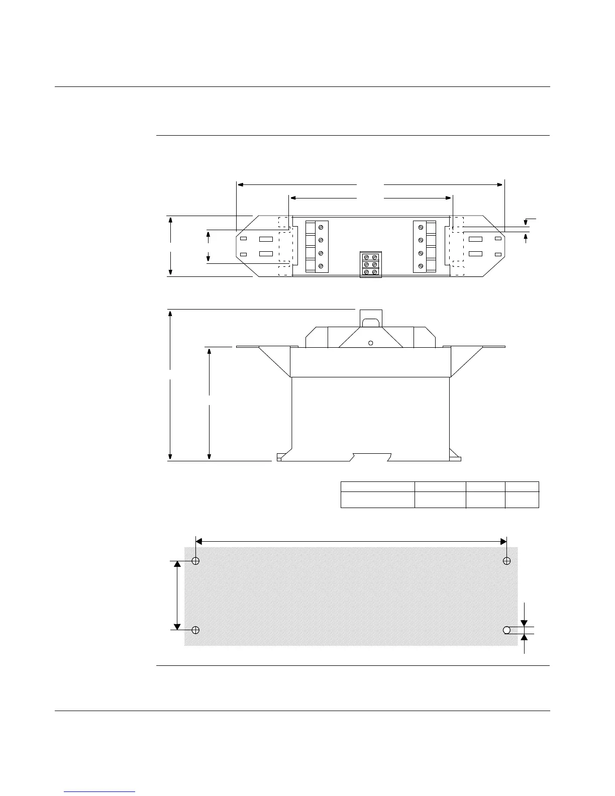
Motor Choke Mounting and Dimensions
Motor Choke
Assembly
Dimensions
The following diagram shows the dimensions for the motor choke assembly.
250
153.3
4.
3
160
113
62
35
Réf. Irms max. F max. L
3 x 20 A 8.3 kHz 1,2 mH
AM0FIL001V056
N.B. : All dimensions are in millimeters
(mm).
M4
155
35

Table of Contents

Related product manuals