EasyManua.ls Logo

LEXIUM MHDA1004 - Lexium BPH055 Resolver Connection

Default Icon
204 pages
Print Icon
To Next Page IconTo Next Page
To Next Page IconTo Next Page
To Previous Page IconTo Previous Page
To Previous Page IconTo Previous Page
Loading...
61
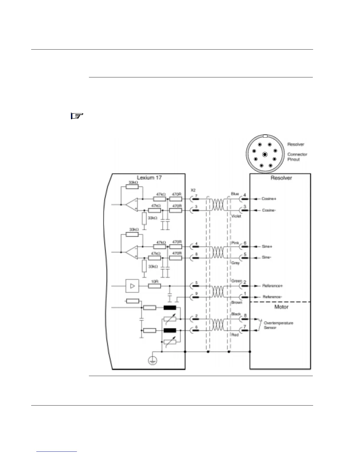
Signal Wiring, continued
Lexium BPH055
Resolver
Connection
The following diagram shows the encoder input connections between the encoder
and the 17D drive.
Note: The BPH055 servo motors are equipped with two-pole, integral resolvers.
The thermistor contact in the servo motor is connected via the resolver cable to the
17D drive..
Continued on next page
BPH055
1
8
7
6
5
4
3
2
9

Table of Contents

Related product manuals