EasyManua.ls Logo

LSIS XEC-DP64H - Page 300

LSIS XEC-DP64H
315 pages
Print Icon
To Next Page IconTo Next Page
To Next Page IconTo Next Page
To Previous Page IconTo Previous Page
To Previous Page IconTo Previous Page
Loading...
Appendix 3 Motor Wiring Example
App.3 - 2
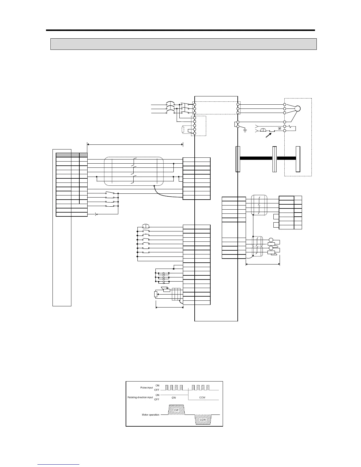
Appendix 3.2 Servo Motor Wiring Example
Here describes wiring example between XGB and servo motor.
In case of using servo motor not described here, refer to relevant drivers user manual.
(1) Connection to a servo motor driver (MR-J2/J2S-A)
(Note1) The rating of XGB origin input is DC24V. Make sure to connect the open collector output of a driver.
(Note2) Although origin, DOC, upper/lower limit signals are with fixed contact, it may be used for general input if they
are not used. Emergency stop is available by the command (EMG).
(Note3) In case of XGB standard type, since only pulse + direction mode is available
, change input mode of servo
motor driver to 1 phase input mode.
(Note4) The above figure is example of XGB standard type. For high-
end type, Origin, DOG, upper/lower limit input
contact point is different with standard type.
Less than Max. 2m
External Emg. stop
Servo On
Reset
Proportional control
Torque limit
Operation limit
Reverse operation limit
*3
*3
Error
Zero speed detection
In torque limit
RA1
RA2
RA3
Analog torque limit
+10V/Max. limit
Power supply
3-phase 200VAC
NF
RD
SD
GND
GND
RS
CS
DR
ER
L1
L2
L3
L11
L21
CTE2
D
P
CN1A
PP
3
SG 10
NP 2
OPC 11
COM
9
EMG 15
SOn 5
RES 14
PC 8
TL
9
LSP 16
LSN
17
SG 10
SG 20
VDD 3
COM 13
ALM
18
ZSP 19
TLC
6
P15R 11
TLA
12
LG 1
SD
Plate
CN1E
TE1
MR-J2S-A
U
V
W
PE
PE
HC-MF HA-FF
Series motor
U
V
W
E
EMG
24VDC
CN2
B1
B2
SM
Electronical brake
Detector
2
1
12
TxD
RxD
LG
11
5
15
LG
LG
LG
4
3
14
13
Plate
GND
RS
CS
DR
ER
CN3
A
A
Monitor output
Max. 10mA
10k
10k
Personal
computer
Less than 2m
Less than 2m
MC
Pulse
DC24V
XGB PLC
Off by server On signal
Cutoff by alarm signal
P20 P21
Signal
Ch0
Ch1
Direction
P22
P23
Common COM
COM
Common COM
COM
+24V Input DC24V
DC24V
DOG
P05 P07
P04 P06
High limit
P01 P03
Low limit
P00 P02
Emg stop
Input
Common COM0(Input
OP 14
LG
1
SD Plate
Origin
(Note
1)
(Note
(Note3)

Table of Contents

Related product manuals