EasyManua.ls Logo

Morgana DocuMaster MFC - Page 233

Morgana DocuMaster MFC
268 pages
Print Icon
To Next Page IconTo Next Page
To Next Page IconTo Next Page
To Previous Page IconTo Previous Page
To Previous Page IconTo Previous Page
Loading...
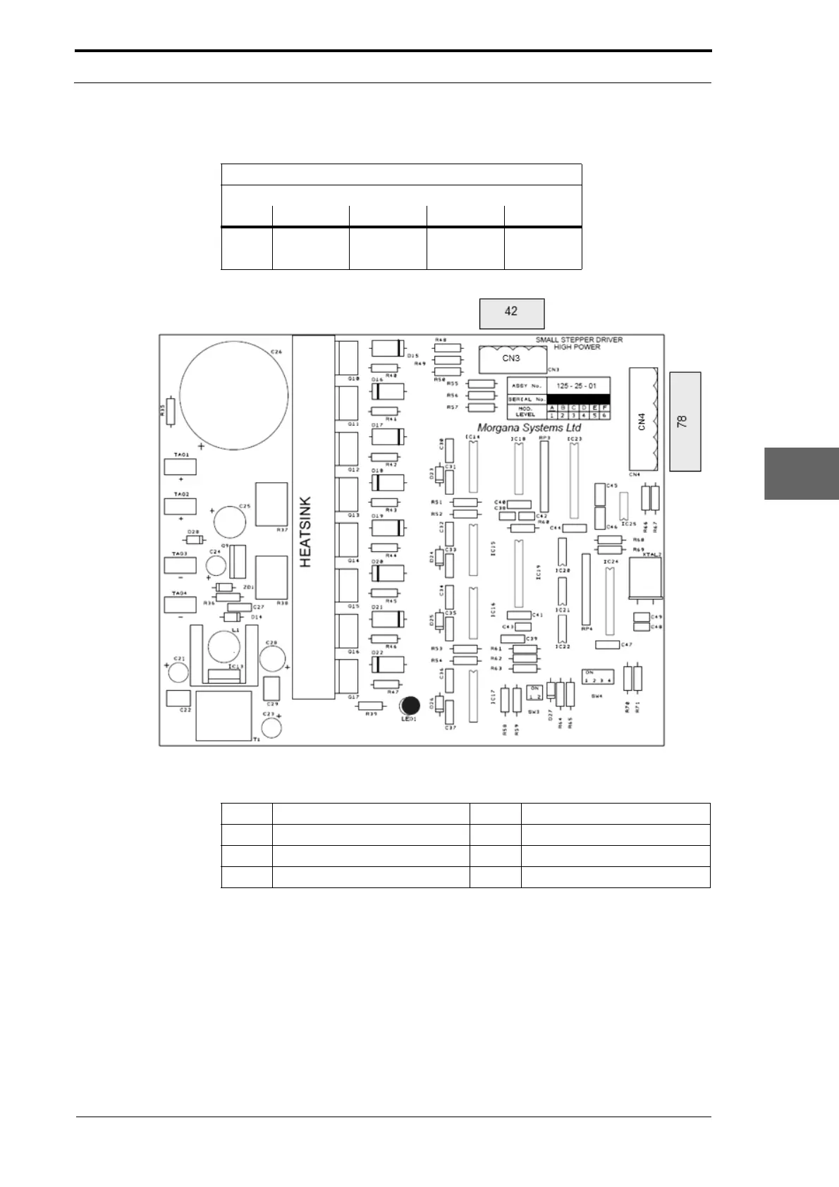
High Power Stepper PCB - MFC
Mode Configuration Switch Positions
1 2 3 4
SW3 ON ON -- --
SW4 ON OFF OFF OFF
Morgana DocuMaster MFC - Service Manual 225
7. Electrical and Control System - PCBs
7
Figure 7.14 High Power Stepper Motor Drive PCB
Description LED LED Function (LED ON)
CN3 Main drive stepper motor
CN4 Main drive control signal
LED1 Power ON

Table of Contents

Related product manuals