EasyManua.ls Logo

Omron OMNUC G Series - Page 61

Omron OMNUC G Series
460 pages
Print Icon
To Next Page IconTo Next Page
To Next Page IconTo Next Page
To Previous Page IconTo Previous Page
To Previous Page IconTo Previous Page
Loading...
2-26
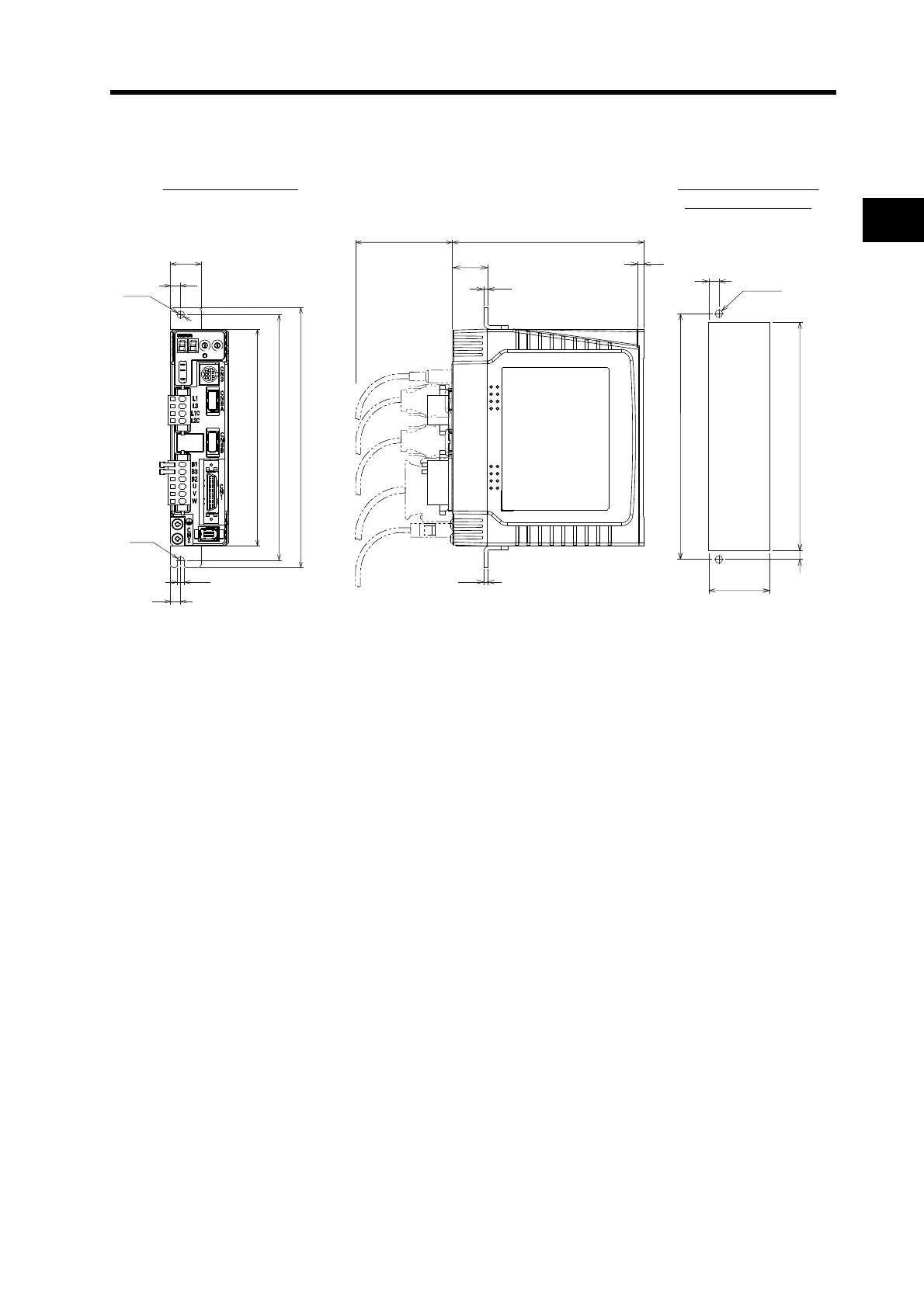
2-2 External and Mounting Hole Dimensions
2
Standard Models and Dimensions
Front Panel Mounting (Using Mounting Brackets)
External Dimensions Mounting Dimensions
(Reference Values)
Two, M4
170
±0.5
Square
hole
(42)*
5.2
7
13270
4
180
170
150
21
7
5.2 dia.
R2.6
2.6
24
2.6
5
4
3
2
1
0
9
8
7
6
X1
AC SERVO DRIVER
ADR
0
1
2
3
X10
COM
SP
IM
G
(158)*
6
8
Note The dimensions of the square
hole are reference values.

Table of Contents

Related product manuals