EasyManua.ls Logo

Siemens simovert masterdrives - Specific Alarms (A170-A181)

Siemens simovert masterdrives
1547 pages
Print Icon
To Next Page IconTo Next Page
To Next Page IconTo Next Page
To Previous Page IconTo Previous Page
To Previous Page IconTo Previous Page
Loading...
Instructions for Design of Drives in Conformance with EMC Regulations 05.2003
6SE7087-6QX70 (Version AD) Siemens AG
3-16 Compendium Motion Control SIMOVERT MASTERDRIVES
~
=
~
=
Control
Cabinet 1 Cabinet 2 Cabinet 3
Grounding rail
Rule
19
Rule 8
Rule 12
Netz
*) *)
Z
Fig. 3.5.3
Fig 3.5.4
Fig. 3.5.6
Rule 2
Rule
4, 5, 7
Rule
9, 10
Rule 16
Rule
17
Rule
13
Fig. 3.5.2
*) Keep the radio interference
suppression filters away from
SIMOVERT MASTERDRIVE
S
air discharge duct, e.g. by
mounting at another level
Z
Shield connection
Rule
14
Netz
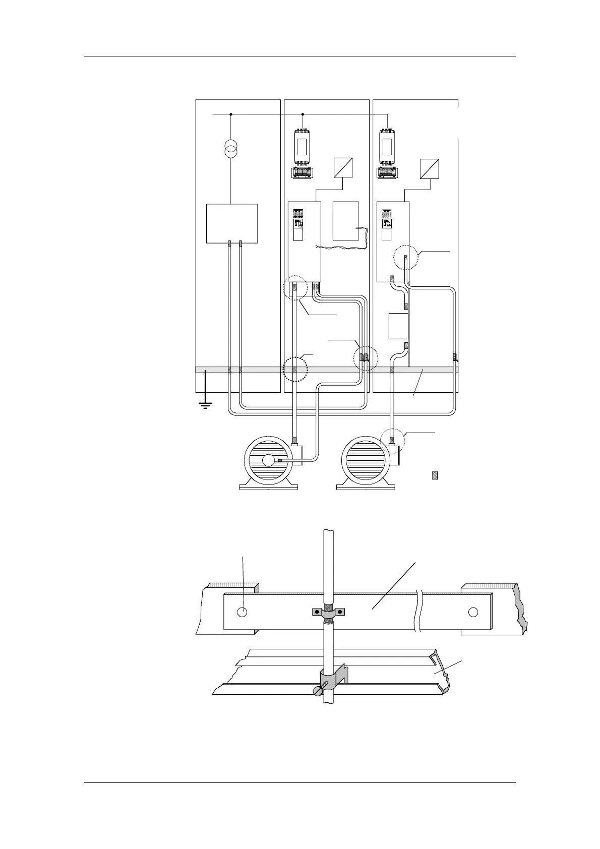
Fig. 3-9 Examples for applying the basic EMC rules
Cable retaining bar
Connect at both ends to the
cabinet housing through the
largest possible surface area!
Shield rail
Fig. 3-10 Connecting the motor cable shield where the cable enters the cabinet

Table of Contents

Other manuals for Siemens simovert masterdrives

Related product manuals