EasyManua.ls Logo

Siemens simovert masterdrives - Page 1070

Siemens simovert masterdrives
1547 pages
Print Icon
To Next Page IconTo Next Page
To Next Page IconTo Next Page
To Previous Page IconTo Previous Page
To Previous Page IconTo Previous Page
Loading...
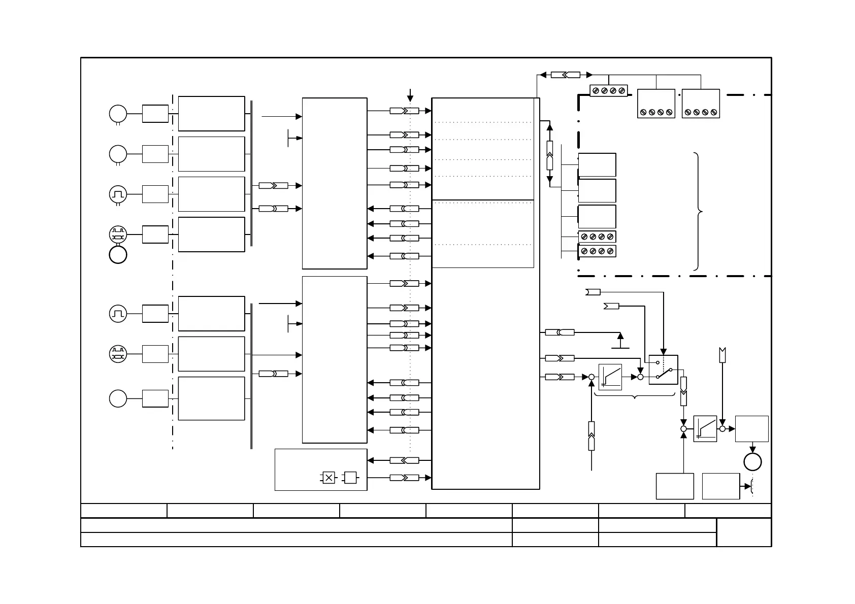
Function diagram
87654321
fp_mc_788_e.vsd
Free blocks
MASTERDRIVES MC
24.10.01
Basic Positioner: Embedding in the Basic Unit
-788 -
V2.5
Encoder evaluations
Resolver evaluation
for motor encoder
in Slot C
[230]
Sin/cos encoder
evaluation for
motor encoder
in Slot C
[240]
Pulse encoder
evaluation for
motor encoder
in Slot C
[250]
Multiturn encoder
evaluation for
motor encoder
in Slot C
[260]
SBR1/
SBR2
SBM
SBP
SBM
~
Resolver
Optical
sin/cos encoder
~
Pulse encoder (for
induction motor only)
Absolute value ecoder
Multiturn (EnDat/EQN)
M
~
Encoders
Pulse encoder
evaluation for
external machine
encoder
[255]
SBP
Multiturn encoder
evaluation for
external machine
encoder
[270]
SBM/
SBM2
Sin/cos encoder
evaluation for
external machine
encoder
SBM2
~
Pulse encoder
Absolute value encoder
Multiturn (SSI/EnDat)
Optical
sin/cos encoder
<1> "(WE)" = This connection is made as part of the
factory settings.
KK0090
B0070
Reference
pulse
Distance
sensing for
motor encoder
in Slot C
Rotor position
theta (mech)
Measured values
valid
[330]
B0071
Reference
pulse
Distance
sensing for
external
machine
encoder
Distance encoder
Measured values
valid
[335]
Free blocks
[701-798]
&
(WE)
[789b,c]
Selection of desired
distance sensing by means
of BICO connection
Position actual value
U850.3,.4 ; U877.i2 (WE)
[788...789]
Acceleration
precontrol
e.g.
from position control [340]
P209=881
Speed setpoint
of ramp gen [320]
(at P772=1 WE)
Speed precontrol value
Position setpoint
+
[340.1]
s
act
s*
Position actual
value from
position
detection [788.4]
1
0
+
+
+
Torque
control
M
~
Brake
control
[470]
Speed
detection
[500]
n
act
Motor encoder:
P194=120
External
encoder:
P194=125
[370]
P262
[370.1]
n*
Enable position controller [340.3]
P210=x
P211=1
or 104
Speed
control [360]
Basic positioner
Position control [340]
+
EB2
[Y05...Y08]
EB1
[Y01...Y04]
X101 [80+90]
Terminal strip and terminal extension
elements (digital and analog I/O)
SIMOLINK
PROFIBUS DP
CAN-Bus
SST1 (USS) [100 + 110]
SST2 (USS; compact
and chassis units only
[101 + 111])
Communications
interfaces
SLB
[140...160]
CBP
[120 + 125]
CBC
[120 + 125]
KK0120
P190=882
Homing point found
U863.3 (WE for SW limit switch)
Ack "Pos. measurand valid"
U878.3 (WE)
Pos. measurand fr pos. memory
U877.i4 (WE)
Enable measurand memory
P179=891
Position correction -COR
P175.2=890
Position correction +COR
P175.1=889
Position correction value COR
P174=885
(WE)
KK0122
(WE)
B0212
(WE)
B0210
KK0125
KK0127
B0217
B0215
P162=891
P158.2=890
P158.1=889
P157=885
<1>
[789c]
[789b]
[789c]
[789c]
Enable basic positioner
U866.1 = 220 (WE)
Enable position control
(WE)
[242]
B0071
"Valid meas. value"
from motor encoder
[789c]
B0070
(WE)
AVWF
AVWF

Table of Contents

Other manuals for Siemens simovert masterdrives

Related product manuals