EasyManua.ls Logo

Siemens simovert masterdrives - Page 1071

Siemens simovert masterdrives
1547 pages
Print Icon
To Next Page IconTo Next Page
To Next Page IconTo Next Page
To Previous Page IconTo Previous Page
To Previous Page IconTo Previous Page
Loading...
- 788a -
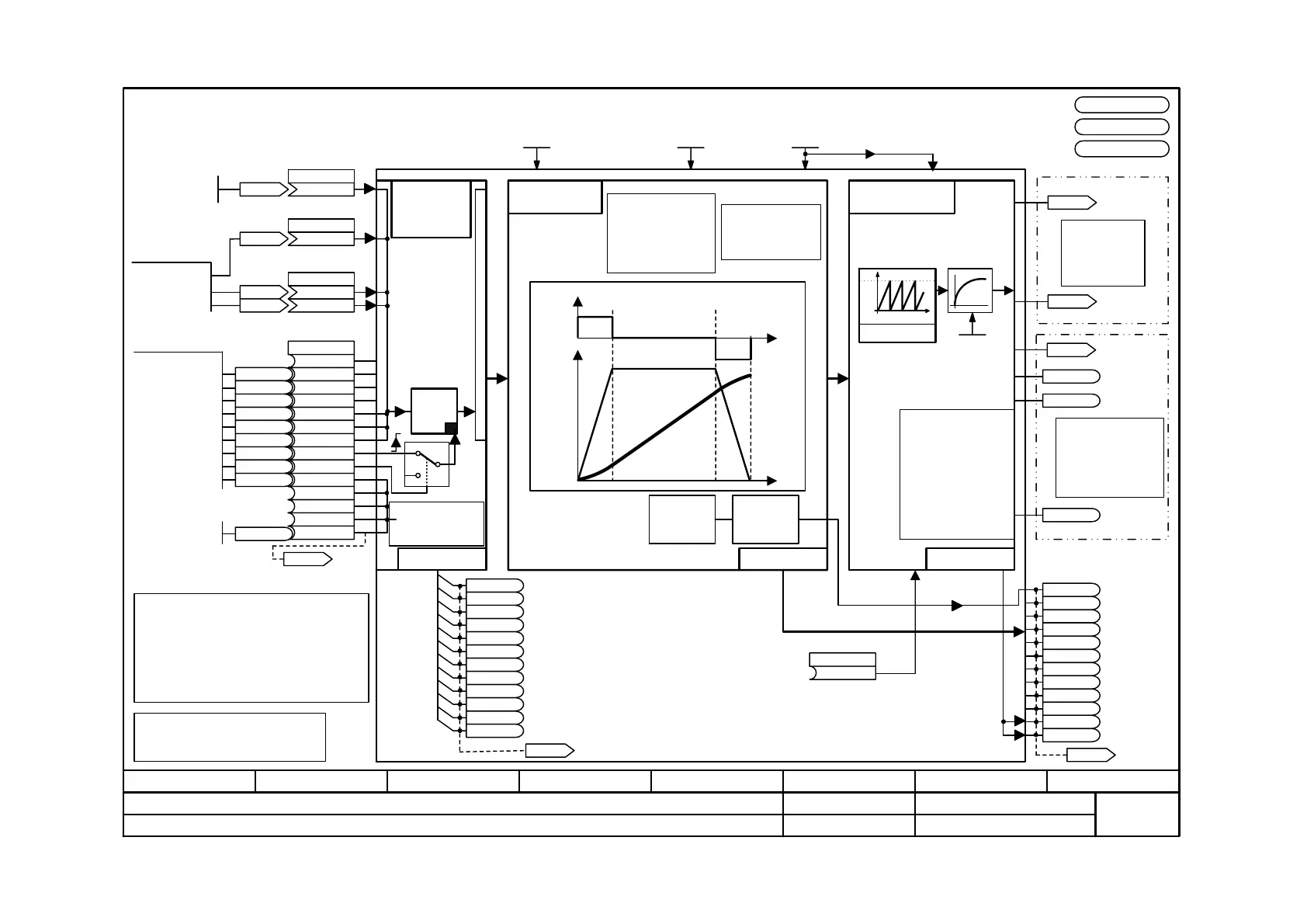
Function diagram
87654321
fp_mc_788a_e.vsd
Free blocks
MASTERDRIVES MC
01.07.03
Basic Positioner Overview
V2.5
RD
RU
v_set
SETUP / POS
V , S
A
Up
Down
S
V
FD 789bFD 789a FD 789c
.10
Sequence control
homing possible
V-Max.
U873.1...3 (100)
Fixed connectors
[%] setpoints
To position
detection
e.g.: position
detection
motor encoder [330]
(see [789c])
Set setpoint
transfer
E.G.
to position
controller
[340]
(see [789c])
Checkback signals
Checkback signal of
active modes
U864
0...100.00s
POS-OK
Delay time
U859
POS-OK
window
width[LU]
U872 (0)
Backlash
compensation[LU]
-2
31
...2
31
-1
U865 (0)
Software
limit switch [LU]
-2
31
+1...2
31
-1
PLUS: U865.1 (0)
MINUS: U865.2 (0)
B0212
Measured value valid
[330.8]
Homing on the fly
with window
evaluation
Inner and
outer window
U879.1 (0) F1 inner
U879.2 (0) F2 outer
U874.2
Homing setpoint
[LU]
Note:
This is an overview and does not show all
connections.
The position actual values, position setting values
and measured value memory (also for tracking
mode) are connected up at the factory to the
position-sensing motor encoder SlotC
(also see function diagram [788]).
Correction block /
referencer
A-Up
A-Down
.01
.02
.03
.01
.02
.01
.02
.03
.04
.05
.06
.07
.08
.09
.10
.11
.12
.13
.14
.01
.02
.03
.04
.05
.06
.07
.08
.09
ENABLE POS/REF
REF_ON
D_BWD
SETUP_ON
POS_ON
POS_TYP
D_FWD
SPV_RIE
SPV_RIE_TYP
REF_TYPE
REF_BWD_STOP
REF_FWD_STOP
REF_STOP
REF_D
0
1
1
Note:
Further helpful notes are to be found in
function diagram [788b].
Setup /
positioning
Setpoint
transfer,
mode
management
Mode
management,
e.g.:
REF (homing)
POS
(positioning)
SETUP
(setup)
with U858.2 (-1)
0
.11
Checkback signals
[ARFD]
0
9
( Recommended: U953.6x=4 )
(U858=0: Linear axis)
U875.1...10 (0)
Fixed bin. control word
10
11
V Nom.
0...20 000 000.00[1000LU/min]
U856 (12288.00)
Axis cycle
0...2
31
-1
U858.1 (4096)
Nom. acceleration
0...20 000 000.00[1000LU/s
2
]
U857 (204.00)
KK
U867 (879)
Position setpoint [LU]
K (878)
B (881)
B (882)
B (883)
B (886)
B (1)
B (1)
B (888)
B (887)
B0881
B0882
B0883
B0886
B0887
B (880)
B (879)
B (878)B0878
B0879
B0880
B (884)
B (885)
B0884
B0885
K0877
K0878
KK0876
KK0879
B0891
Enable measured val. mem.
B0890 NOV
B0889
POV
B0860 [POS_OK]
B0861 [POS_RUN]
B0862 [RFG_RUN]
B0863 [RU_ACT]
B0864 [RD_ACT]
B0865 [FWD_RUN]
B0866 [BWD_RUN]
B0867 [POS_DELTA]
B0868 [SW_E_PLUS]
B0869 [SW_E_MINUS]
B0888 [ARFD]
B0870 [ENABLE_POS_REF]
B0871 [REF]
B0872 [POS]
B0873 [SETUP]
Fixed connector
position setpoints
U874.1 (0)
KK
U868 (876)
Speed setpoint [%]
K (877)
U869.1...2
Acceleration setpoint [%]
B (220)
U866.1...14
Control word
B
U878.3 (212)
Start Ref.
KK0885
Correction value
[LU]
Rounding
time constant
0...10.000 s
U880 (0)
U953.60 =___ (20)
U953.61 = ___(20)
U953.62 =___ (20)
B0874 [POS_TYP_ACT]
B0892 [F_REF_WD]
K0889
n862.2
/ 0 to 11
K0886
n870.1
/ 0 to 13
B0875 [D_FWD_ACT]
B0876 [D_BWD_ACT]
B0877 [PSR]
reserved
B0893 [REF_DRIVE]
K0887 n870.2 / 0 to 10
B0894 [SPV_RIE_ACK]
KK0882 S [LU]
KK0881 V [%]
B0895 [REF_D]

Table of Contents

Other manuals for Siemens simovert masterdrives

Related product manuals