EasyManua.ls Logo

Siemens simovert masterdrives - Page 1098

Siemens simovert masterdrives
1547 pages
Print Icon
To Next Page IconTo Next Page
To Next Page IconTo Next Page
To Previous Page IconTo Previous Page
To Previous Page IconTo Previous Page
Loading...
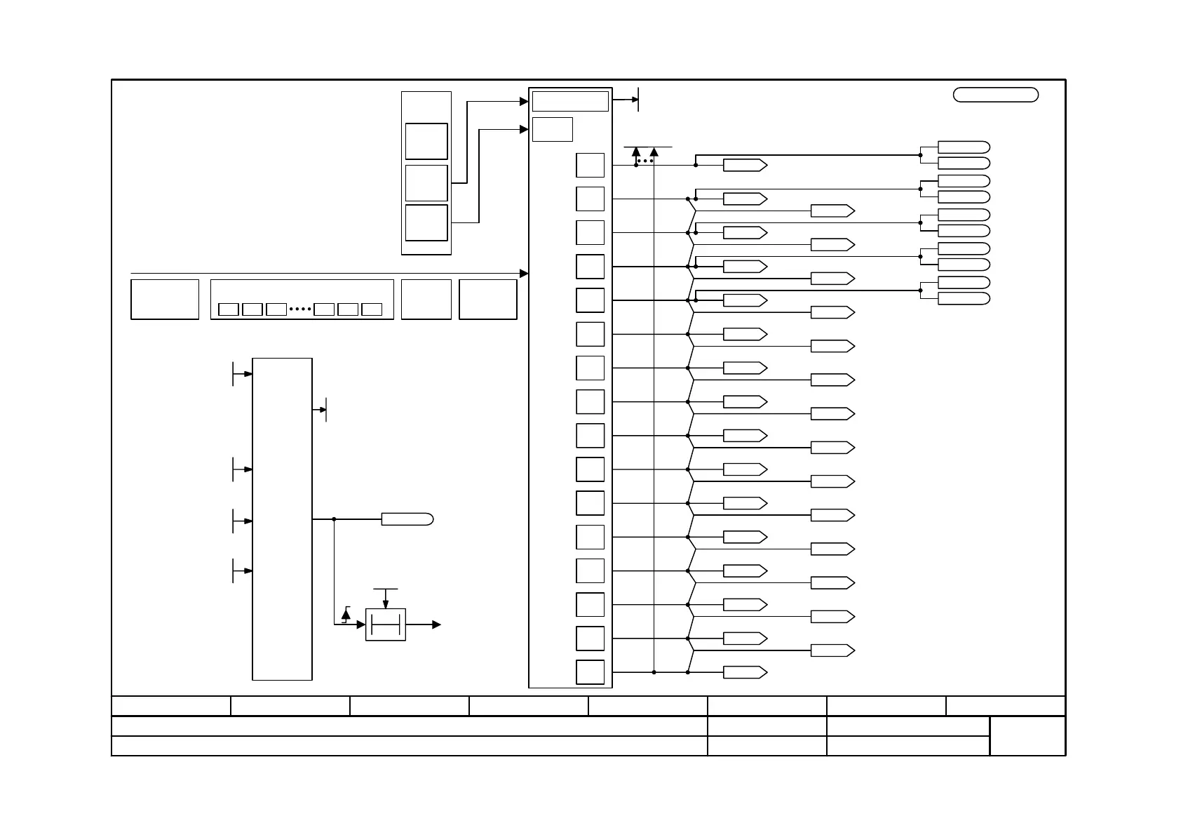
Function diagram
87654321
fp_mc_Z05_e.vsd
SCB2
MASTERDRIVES MC
08.01.02
USS receiving
- Z05 -
V2.5
P696 (x)
x=0: Master for SCI boards
x=1: 4-wire USS
x=2: 2-wire USS
x=3: Peer-to-peer
Note: Bit 10 must be set in the first PZD word of the
telegram received via USS so that the conver-
ter will accept the process data as being valid.
For this reason, the control word 1 must be
transferred to the converter in the first PZD
word.
PKW words
SCB Receive telegram Receive
TLG end
PZD
16 15 14 123
PKW TLG head
1
2
3
4
6
5
7
8
9
10
11
12
13
14
15
16
Low
High
Low
High
Low
High
Low
High
Low
High
Low
High
Low
High
Low
High
Low
High
Low
High
Low
High
Low
High
Low
High
Low
High
SCB -SCom:
Config
area
PKW
PZD
Dual
Port RAM
PZD
words
SCB
configu-
ration
T0
to F079
SCB
Telegram Failure
P704.3 (x)
x=0 no monitoring
SCB-SCom:
<1> (xx) see parameter list
Not with Compact PLUS!
No fault when P781.15 = 101.0 s
K4501 Word 1
B4515 Word 1 Bit 15
K4502 Word 2
B4600 Word 2 Bit 0
B4615 Word 2 Bit 15
KK4532 DWord 2
K4503 Word 3
B4700 Word 3 Bit 0
B4715 Word 3 Bit 15
B4500 Word 1 Bit 0
KK4533 DWord 3
K4504 Word 4
B4800 Word 4 Bit 0
B4815 Word 4 Bit 15
KK4535 DWord 5
K4506 Word 6
KK4534 DWord 4
K4505 Word 5
B4900 Word 5 Bit 0
B4915 Word 5 Bit 15
KK4536 DWord 6
K4507 Word 7
KK4537 DWord 7
K4508 Word 8
KK4538 DWord 8
K4509 Word 9
KK4539 DWord 9
K4510 Word 10
KK4540 DWord 10
K4511 Word 11
KK4541 DWord 11
K4512 Word 12
KK4542 DWord 12
K4513 Word 13
KK4543 DWord 13
K4514 Word 14
KK4544 DWord 14
K4515 Word 15
KK4545 DWord 15
K4516 Word 16
U953.25 = ___(4)
SCom Baud Rate
1 ... 13
P701.3 (6)
SCom PcD #
0 ... 5
P703.3 (2)
SCom TlgOFF
0 ... 6500 ms
P704.3 (0)
B0050
SCB TlgOFF
Fault Delay
0.0 ... 100.0 s
P781.15 (0.0)
SCB Protocol
0 ... 5
P696 (0)
SCB Diagnosis
r697.xx <1>
PKW Task
r738.9 to .12
SCB
Receive Data
r699.17 to .32

Table of Contents

Other manuals for Siemens simovert masterdrives

Related product manuals