EasyManua.ls Logo

Siemens simovert masterdrives - Page 1114

Siemens simovert masterdrives
1547 pages
Print Icon
To Next Page IconTo Next Page
To Next Page IconTo Next Page
To Previous Page IconTo Previous Page
To Previous Page IconTo Previous Page
Loading...
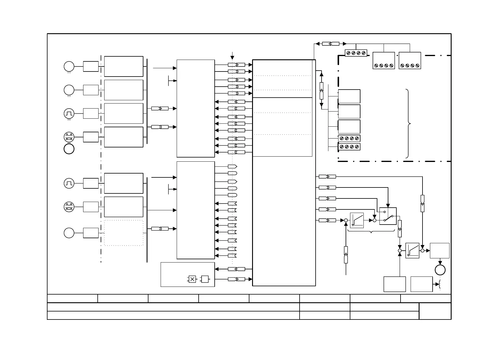
Function diagram
87654321
fp_mc_801_e.vsd
Technology option
MASTERDRIVES MC
02.02.04
Embedding the technology in the basic unit
-801 -
Encoder evaluations
Resolver evaluation
for motor encoder
in slot C
[230]
sin/cos encoder
evaluation
for motor encoder
in slot C
[240]
Pulse encoder
for motor encoder
in slot C
[250]
Multiturn encoder
evaluation for
motor encoder
in slot C
[260]
SBR1/
SBR2
SBM
SBP
SBM
~
Resolver
Optical
sin/cos encoder
~
Pulse encoder (only
for induction motor)
Absolute-value encoder
Multiturn (EnDat/EQN)
M
~
Encoder
Pulse.encoder
evaluation for
exter-
nal machine
encoder
[255]
SBP
Multiturn-encoder
evaluation for
external machine
encoder
[270]
SBM/
SBM2
sin/cos encoder
evaluation for
external machine
encoder
(in preparation)
SBM2
~
Pulse encoder
Absolute-value encoder
Multiturn (SSI/EnDat)
Optical
sin/cos encoder
<1> "(WE)" = This connection already made
in the factory setting
KK0090
B0070
Reference
pulse
Position
sensing for
motor encoder
in slot C
Rotor position
Mech. Angle
Meas. values
valid
[330]
B0071
Reference
pulse
Position
sensing for
external
machine
encoder
Encoder pos.
Measured
values valid
[335]
Free blocks
[702-795]
&
(WE)
(WE)
(WE)
(WE)
(WE)
(WE)
(WE)
<1>
[815]
[836]
Selection of the desired
position unit by means of
BICO connection
Actual position
Actual position O.K.
Pos. MeasV from pos. memory
Acknowl. "Pos. MeasV valid"
Reference point detected
Position setting value
Set position
Position correction value
Correct position +
Correct position -
Position offset
Release meas. value memory
Release ref. point detection
[802...850]
Acceleration precontrol
(WE)
(WE)
(WE)
[817.6]
P209=312
1/0 = speed-controlled/
pos.-controlled operation
Speed setpoint for control
Speed precontrol value
Pos. setpoint
+
[340.1]
s
ist
s*
Actual position
from position
sensing [801.4]
1
0
+
+
+
Torque
control
M
~
Brake
control
[470]
P220=75
[360.1]
Speed
detection
[500]
n
act.
Motor encoder:
P194=120
External encoder:
P194=125
[370]
P262
[370.1]
n*
Enable control [340.3]
P210=1
P211=1
or 104
a*
Speed
controller [360]
F01 technology
option
Speed control [340]
+
EB2
[Y05...Y08]
EB1
[Y01...Y04]
X101 [80+90]
Terminal strip and expansion boards
(digital and analog I/Os)
SIMOLINK
PROFIBUS DP
CAN bus
SST1 (USS) [100 + 110]
SST2 (USS; only with
Compact and chassis
units [101 + 111])
Communication
interfaces
SLB
[140...160]
CBP
[120 + 125]
CBC
[120 + 125]
KK0120
KK0125
V2.5
IBF
IBF

Table of Contents

Other manuals for Siemens simovert masterdrives

Related product manuals