EasyManua.ls Logo

Siemens simovert masterdrives - Page 1118

Siemens simovert masterdrives
1547 pages
Print Icon
To Next Page IconTo Next Page
To Next Page IconTo Next Page
To Previous Page IconTo Previous Page
To Previous Page IconTo Previous Page
Loading...
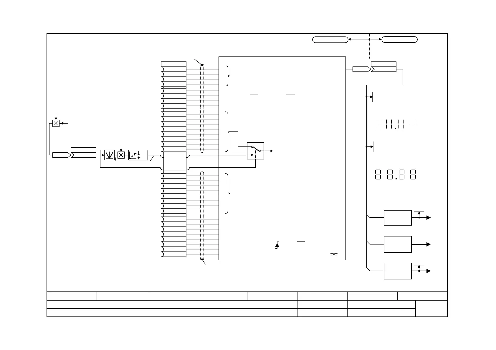
Function diagram
87654321
fp_mc_809_e.vsd
Technology option
MASTERDRIVES MC
01.07.03
Positioning control signals
-809 -
<4> In special cases, an operating-mode change is also
possible during traversing. The drive then brakes
by means of MD19 or MD42. After arrival of the start
enable [ST_EN], the new movement can be
started.
<3> Operating mode signalled back: [MODE_OUT]: see n540.15 [811.3]
<2> Examples of generating the positioning control signals:
- U530=3032: Comm. board CBx, words 2 and 3 [120.6]
- U530=860 : Bit-by-bit generation by means of positioning control word [809.3]
<1> or stipulation of the direction of rotation in the case of MDI rotary-axis positioning by means of the G90 function (00 = "Travel shortest distance")
Recommended: U953.30 = 4, (only insert when KK0860 is used)
Recommended:
U953.32 = 4
Formation of the positioning control signals
High word
2
3
2
2
2
1
2
0
<4> MODE_IN Selection of op. mode (change only at standstill)
Low word
0 = No operating mode 4 = Control
1 = Set up 5 = Automatic positioning
2 = Homing 6 = Automatic single block
3 = MDI (point-to-point 11 = Synchronous operation
positioning)
<2>
OVERRIDE
0 ... 255 = 0 ... 255 %
(64h = 100d = 100 %)
0
>0
0 ... 200 %
0.781
1.275
0 ... + 200 %
0 ... + 255 %
OVERRIDE
Velocity override
0 ... 255
2
7
2
6
2
5
2
4
2
3
2
2
2
1
2
0
2
7
2
6
2
5
2
4
2
3
2
2
2
1
2
0
[MDI_NO] (MDI number for MDI)
[PROG_NO] (Program number for automatic mode)
[J_FWD] Jog forwards (Jog ForWarD) <1>
[F_S] Fast / slow (Fast / Slow) for setting up/homing
[J_BWD] Jog backwards (Jog BackWarD) <1>
[BLSK] Block skip (BLock SKip)
[SIST] Single step (SIngle STep)
[RST] Reset technology (ReSeT)
[FUM] Follow-up mode (Follow-Up Mode; s_setp:=s_act)
[ACK_M] Acknowledge M function (ACKnowledge M-Function)
[CRD] Clear remaining distance (Clear Remaining Distance)
[STA] Start (Start / Stop positioning traversing)
[RIE] Read in enable (Read-In Enable)
[TGL_I] Toggle-bit input (flying MDI record change)
(Factory setting: U708 = 100 ==>
OVERRIDE at n540.11 = 100 %)
31 30 29 28 27 26 25 24
23 22 21 20 19 18 17 16
Display on PMU:
15 14 13 12 11 10 9 8
7 6 5 4 3 2 1 0
Display on PMU:
Override
Control bits
Operating
mode
to the operating modes
Bits 28 ... 31
0 ... 15
24 ... 27
Bits 16 ... 23
<3>
1 %
V2.5
U953.30 = ___(20)
U953.32 = ___(20)
B
U710
.32 (0) Bit 31
B
.31 (0) Bit 30
B
.30 (0) Bit 29
B
.29 (0) Bit 28
B
.28 (0) Bit 27
B
.27 (0) Bit 26
B
.26 (0) Bit 25
B
.25 (0) Bit 24
B
.24 (0) Bit 23
B
.23 (0) Bit 22
B
.22 (0) Bit 21
B
.21 (0) Bit 20
B
.20 (0) Bit 19
B
.19 (0) Bit 18
B
.18 (0) Bit 17
B
.17 (0) Bit 16
B
.16 (0) Bit 15
B
.15 (0) Bit 14
B
.14 (0) Bit 13
B
.13 (0) Bit 12
B
.12 (0) Bit 11
B
.11 (0) Bit 10
B
.10 (0) Bit 9
B
.09 (0) Bit 8
B
.08 (0) Bit 7
B
.07 (0) Bit 6
B
.06 (0) Bit 5
B
.05 (0) Bit 4
B
.04 (0) Bit 3
B
.03 (0) Bit 2
B
.02 (0) Bit 1
B
.01 (0) Bit 0
KK0860
Positioning
control word
KK
U530 (860)
Control signals,
positioning
K0859 K
U709 (859)
External velocity
override
MODE_IN
n540.14
n540.11
Fixed Override
0 ... 255 %
U708 (100)
High word
n541.02
Low word
n541.01

Table of Contents

Other manuals for Siemens simovert masterdrives

Related product manuals