EasyManua.ls Logo

Siemens simovert masterdrives - Page 963

Siemens simovert masterdrives
1547 pages
Print Icon
To Next Page IconTo Next Page
To Next Page IconTo Next Page
To Previous Page IconTo Previous Page
To Previous Page IconTo Previous Page
Loading...
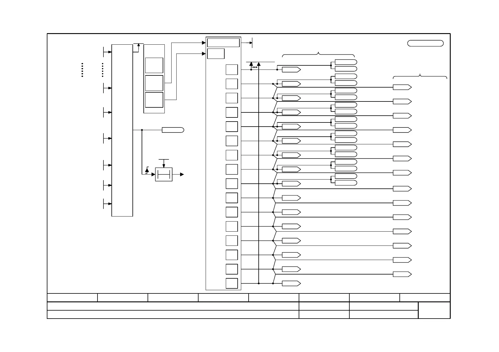
Function diagram
87654321
fp_mc_120_e.vsd
First CB/TB board (low slot letter)
MASTERDRIVES MC
23.10.02
Receiving
-120 -
V2.5
CB
configu-
ration
Applicable to following configurations:
- Only a CB
- Only a TB (TB not possible with Compact PLUS)
- CB behind TB (TB in slot D or E)
- Two CBs plugged in: for the CB with the lower slot letter
T0
Note: Bit 10 must be set in the first PcD word so that the converter accepts the
process data as being valid. For this reason, control word 1 must be
transferred to the converter in the first PcD word. Exception: From
MASTERDRIVES MC V1.62 with CBP2 V2.21 and standard telegram 5
(PROFIdrive Profile V3 with equidistance) onwards, the PcD data are
transferred to the converter without having to set bit 10.
PKW words
1
2
3
4
6
5
7
8
9
10
11
12
13
14
15
16
Low
High
Low
High
Low
High
Low
High
Low
High
Low
High
Low
High
Low
High
Low
High
Low
High
Low
High
Low
High
Low
High
Low
High
PcD
words
F082
CB/TB TlgOFF
Config.
area
PKW
PcD
Dual-
port RAM
<1>
<1>
<1> CB = Communications board, e.g. CBP
TB = Technology board, e.g. T100, T300, T400
(cannot be plugged into Compact PLUS)
No fault when P781.13 = 101.0 s
A: Words and bits [121]
B: Double words [121]
CB Parameter 1
0 ... 65535
P711.01
CB Parameter 10
0 ... 65535
P720.01
CB Parameter 11
0 ... 65535
P721.01 to .05
CB/TB TlgOFF
0 ... 6500 ms
P722.01 (10)
P722.01 =0 :
No monitoring
CB Bus Address
0 ... 200
P918.01 (3)
B0035
CB/TB TlgOFF
Fault Delay
0.0 ... 101.0 s
P781.13 (0.0)
K3001 CB/TB Word 1
B3115 CB/TB Word 1 Bit 15
K3002 CB/TB Word 2
K3003 CB/TB Word 3
B3100 CB/TB Word 1 Bit 0
KK3033 CB/TB DWord 3
K3004 CB/TB Word 4
B3400 CB/TB Word 4 Bit 0
B3415 CB/TB Word 4 Bit 15
KK3035 CB/TB DWord 5
K3006 CB/TB Word 6
B3600 CB/TB Word 6 Bit 0
B3615 CB/TB Word 6 Bit 15
KK3034 CB/TB DWord 4
K3005 CB/TB Word 5
B3500 CB/TB Word 5 Bit 0
B3515 CB/TB Word 5 Bit 15
KK3036 CB/TB DWord 6
K3007 CB/TB Word 7
B3700 CB/TB Word 7 Bit 0
B3715 CB/TB Word 7 Bit 15
KK3037 CB/TB DWord 7
K3008 CB/TB Word 8
B3800 CB/TB Word 8 Bit 0
B3815 CB/TB Word 8 Bit 15
KK3038 CB/TB DWord 8
K3009 CB/TB Word 9
B3900 CB/TB Word 9 Bit 0
B3915 CB/TB Word 9 Bit 15
KK3039 CB/TB DWord 9
K3010 CB/TB Word 10
KK3040 CB/TB DWord 10
K3011 CB/TB Word 11
KK3041 CB/TB DWord 11
K3012 CB/TB Word 12
KK3042 CB/TB DWord 12
K3013 CB/TB Word 13
KK3043 CB/TB DWord 13
K3014 CB/TB Word 14
KK3044 CB/TB DWord 14
K3015 CB/TB Word 15
KK3045 CB/TB DWord 15
K3016 CB/TB Word 16
U950.11 = ___(4)
CB Diagnosis
r732.01 to .32
CB Parameter Access
xxxx xxxx xxxx xxx1
P053
TB Parameter Access
xxxx xxxx xxx1 xxxx
P053
B3200 CB/TB Word 2 Bit 0
B3215 CB/TB Word 2 Bit 15
B3300 CB/TB Word 3 Bit 0
B3315 CB/TB Word 3 Bit 15
KK3032 CB/TB DWord 2
PKW Order
r738.05 to .08
CB/TB RecvData
Receive data
r733.01 to .16

Table of Contents

Other manuals for Siemens simovert masterdrives

Related product manuals