EasyManua.ls Logo

Siemens simovert masterdrives - Page 966

Siemens simovert masterdrives
1547 pages
Print Icon
To Next Page IconTo Next Page
To Next Page IconTo Next Page
To Previous Page IconTo Previous Page
To Previous Page IconTo Previous Page
Loading...
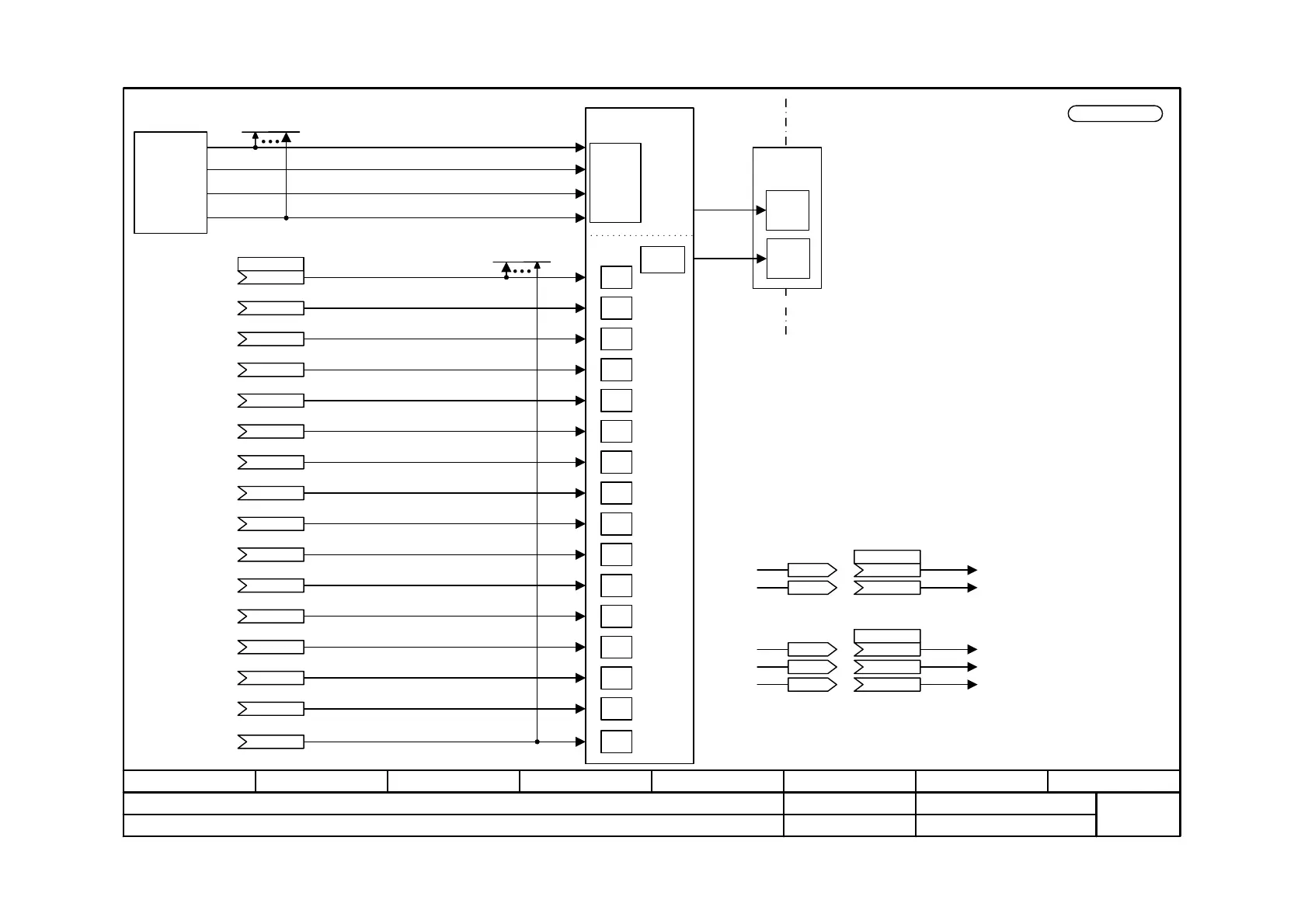
Function diagram
87654321
fp_mc_125_e.vsd
First CB/TB board (low slot letter)
MASTERDRIVES MC
23.10.02
Transmitting
-125 -
V2.5
PKW
processing
PKW
words
PcD
words
1
2
3
4
6
5
7
8
9
10
11
12
13
14
15
16
PKW Word 1 CB/TB
PKW Word 2 CB/TB
PKW Word 4 CB/TB
PKW Word 3 CB/TB
.01 (32)
.02
.03
.04
.05
.06
.07
.08
.09
.10
.11
.12
.13
.14
.15
.16
Transmit
PKW
words
PcD
words
Dual-
port RAM
01
02
03
04
Transmitting 32-bit words:
If the same double-word connector is connected up to two successive connector
indices, this is transferred as a 32 bit word.
Examples:
2.
1.
KK1000 is transferred as
a 32-bit word
.02
.03
Only the high part of
KK1000 and KK2000 is
transferred as a 16-bit
word
.02
.03
.04
CB/TB
(Communications board/Technology board)
Transmit telegram
K
P734 (0)
SrcCB/TBTrnsData
K
K
K
K
K
K
K
K
K
K
K
K
K
K
K
CB/TB TrnsData
r735.01 to .16
PKW Reply
r739.05 to .08
U950.21 = ___(4)
1000
P734 (0)
1000
KK1000
KK1000
2000
P734 (0)
1000
KK2000
KK1000
900KK0900

Table of Contents

Other manuals for Siemens simovert masterdrives

Related product manuals