EasyManua.ls Logo

Siemens simovert masterdrives - Page 967

Siemens simovert masterdrives
1547 pages
Print Icon
To Next Page IconTo Next Page
To Next Page IconTo Next Page
To Previous Page IconTo Previous Page
To Previous Page IconTo Previous Page
Loading...
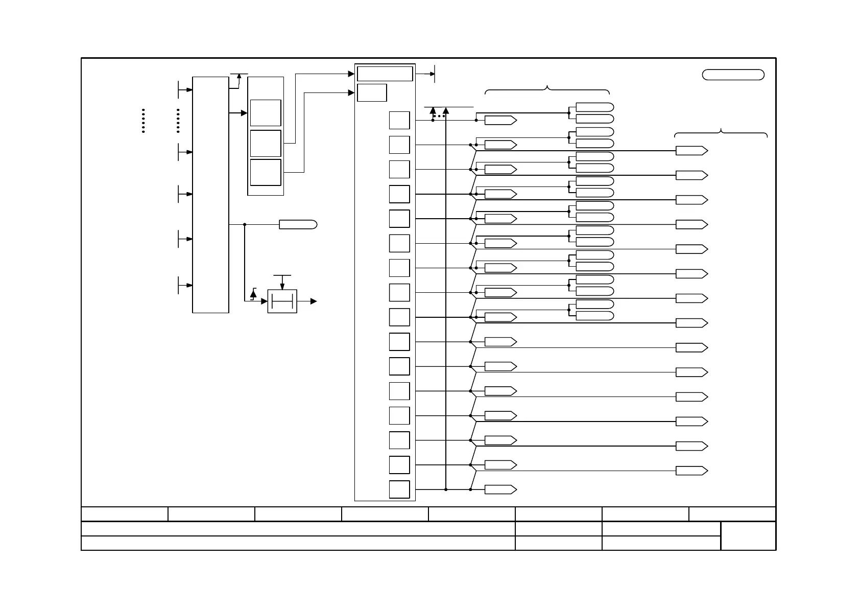
Function diagram
87654321
fp_mc_130_e.vsd
Second CB/TB board (higher slot letter)
MASTERDRIVES MC
23.10.02
Receiving
-130 -
V2.5
CB
configu-
ration
Valid for following configurations:
- CB before TB, i.e. CB in slot A or C
(TB not possible with Compact PLUS)
- Two CBs plugged in: for the CB with the higher slot letter
T0
Note: Bit 10 must be set in the first PcD word so that the
converter will accept the process data as being valid.
For this reason, control word 1 must be transferred to
the converter in the first PcD word.
Exception: From MASTERDRIVES MC V1.62 with CBP2
V2.21 and standard telegram 5 (PROFIdrive Profile V3 with
equidistance) onwards, the PcD data are transferred to the
converter without having to set bit 10.
PKW words
1
2
3
4
6
5
7
8
9
10
11
12
13
14
15
16
Low
High
Low
High
Low
High
Low
High
Low
High
Low
High
Low
High
Low
High
Low
High
Low
High
Low
High
Low
High
Low
High
Low
High
PcD
words
F082
CB/TB TlgOFF
Config.
area
PKW
PcD
Dual-
port RAM
No fault when P781.14 = 101.0 s
A: Words and bits [121]
B: Double words [121]
CB Parameter 1
0 ... 65535
P711.02
CB Parameter 10
0 ... 65535
P720.02
CB Parameter 11
0 ... 65535
P721.06 to .10
CB/TB TlgOFF
0 ... 6500 ms
P722.02 (10)
P722.02 =0 :
No monitoring
CB Bus Address
0 ... 200
P918.02 (3)
B0045
2.CB/TB TlgOFF
Fault Delay
0.0 ... 101.0 s
P781.14 (0.0)
K8001 2.CB Word 1
B8115 2. CB Word 1 Bit 15
K8002 2.CB Word 2
B8200 2. CB Word 2 Bit 0
B8215 2. CB Word 2 Bit 15
KK8032 2.CB DWord 2
K8003 2.CB Word 3
B8300 2. CB Word 3 Bit 0
B8315 2. CB Word 3 Bit 15
B8100 2. CB Word 1 Bit 0
KK8033 2.CB DWord 3
K8004 2.CB Word 4
B8400 2. CB Word 4 Bit 0
8415 2. CB Word 4 Bit 15
KK8035 2.CB DWord 5
K8006 2.CB Word 6
B8600 2. CB Word 6 Bit 0
B8615 2. CB Word 6 Bit 15
KK8034 2.CB DWord 4
K8005 2.CB Word 5
B8500 2. CB Word 5 Bit 0
B8515 2. CB Word 5 Bit 15
KK8036 2.CB DWord 6
K8007 2.CB Word 7
B8700 2. CB Word 7 Bit 0
B8715 2. CB Word 7 Bit 15
KK8037 2.CB DWord 7
K8008 2.CB Word 8
B8800 2. CB Word 8 Bit 0
B8815 2. CB Word 8 Bit 15
KK8038 2.CB DWord 8
K8009 2.CB Word 9
B8900 2. CB Word 9 Bit 0
B8915 2. CB Word 9 Bit 15
KK8039 2.CB DWord 9
K8010 2.CB Word 10
KK8040 2.CB DWord 10
K8011 2.CB Word 11
KK8041 2.CB DWord 11
K8012 2.CB Word 12
KK8042 2.CB DWord 12
K8013 2.CB Word 13
KK8043 2.CB DWord 13
K8014 2.CB Word 14
KK8044
2.CB DWord 14
K8015 2.CB Word 15
KK8045 2.CB DWord 15
K8016 2.CB Word 16
U950.15 = ___(4)
PKW Order
r738.17 to .20
CB/TB RecvData
Received data
r733.17 to .32
CB Diagnosis
r732.33 to .64

Table of Contents

Other manuals for Siemens simovert masterdrives

Related product manuals