EasyManua.ls Logo

Tormach PCNC 440 - Page 183

Tormach PCNC 440
183 pages
Print Icon
To Previous Page IconTo Previous Page
To Previous Page IconTo Previous Page
Loading...
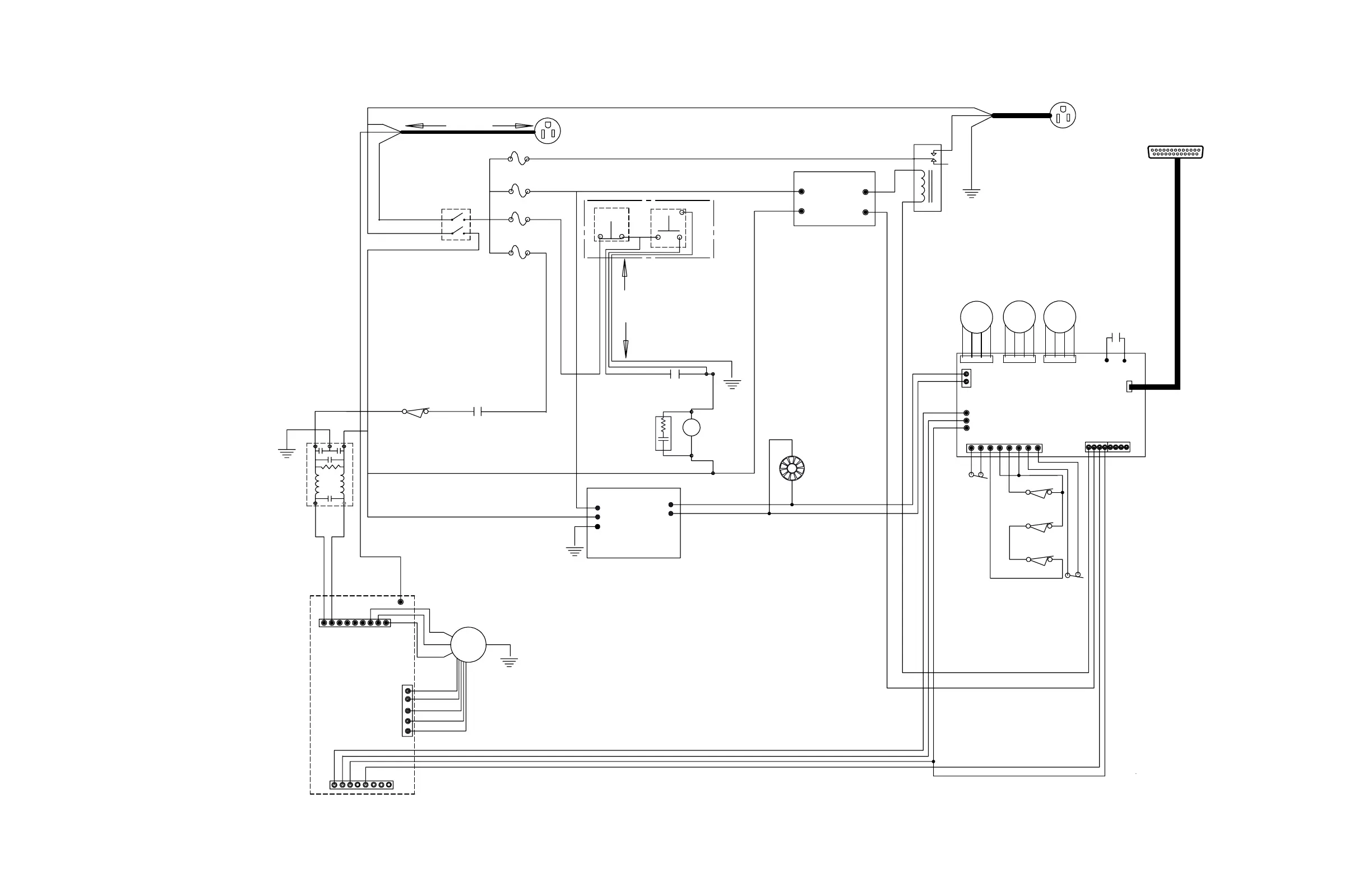
PCNC 440 ELECTRICAL SCHEMATIC
LS3 (31860)
NEMA 5-15 Plug
C1
103
104
100
140
E+
GND
DB25 MALE
48VDC FAN
35629
G (ground)
GREEN / YELLOW
14 AWG
142
5V HC HB HA GND
M1
401
400
402
L1 L2 L3 P B1 B2 U V W
140
100
144
C1
C1
Leadshine MX3660
LS1 (31860)
LS2 (31860)
F1 - 6 AMP
(30456)
IN 1
103
104
Y LIMIT
X LIMIT
Z UPPER
33374
DB25 MALE
DISCONNECT
F3 - 2 AMP
(35627)
L (line)
14 AWG
BLACK
N (neutral) WHITE
(Heavy line is 14 AWG)
F6 - 15 AMP
(30455)
91
102
120
14 AWG
100
141
BLDC Drive
35621
401
400
402
140
143
EMI FILTER
31440
2 Meter Cord
NOTE:
Direct cable from plug will be
marked N. After 1st termination
it will be marked 100.
Spindle
Motor
35422
48 VDC SUPPLY
L
GND
48 VDC
35628
Suppressor
33062
M3-Y
35423
M4-Z
32888
PROBE
PB1
ESTOP
INPUTS TO DRIVE
OUTPUTS
N
EARTH
5 VDC
C1
GND
E-
50 VDC
5V
BRK
SV
F/R
COM
Two Button
Remote
GND1
IN 2
GND2
IN 3
GND3
1 meter cord
1+ 1-
2+ 2- 3+ 3- 4+ 4-
0 - 5 VDC
ALM
PG
EN
PE
SPINDLE DOOR SW
LS5 31860
100
(Heavy line is 14 AWG)
MACHINE FRAME
BONDED TO
EARTH GROUND
XA+
XA-
XB+
XB-
YB-
YB+
YA-
YA+
ZA+
ZA-
ZB-
ZB+
103
102
403/GND
404/HA
405/HB
406/HC
407/5V
201/V+
200/V-
303/E+
304/E-
J10
301/5V
302/SV
300/COM
306/EN
300/COM
IN 4
GND4
EN/ 306
COM/ 300
F10 - 6 AMP
(30456)
24 VDC
SUPPLY
14 AWG
130
NEMA 5-15 Female
Connector
NC
NO
330
332
330
331
130
331
332
+
-
100mm Cord
L
N
100
120
131
START
PB2
201
200
300/COM
302/SV
301/5V
M2-X
32890
IN 1
G 1
SWITCH
REVISIONS
ZONE
REV.
DESCRIPTION
DATE
APPROVED
-
B
4th Axis Added to Wiring Table
2020-12
PDH
D
C
B
A
A
B
C
D
1
2
3
4
5
6
7
8
8
7
6
5
4
3
2
1
MATERIAL
DATE
DRAWN BY
TITLE:
SIZE
B
DWG. NO.
REV
WEIGHT:
SCALE: 1:1
B
PCNC 440
ELECTRICAL
SCHEMATIC
SHEET 1 OF 2
DO NOT SCALE DRAWING
THIS DRAWING CONTAINS PROPRIETARY AND
CONFIDENTIAL INFORMATION BELONGING
TO TORMACH LLC. THIS DRAWING MAY NOT BE
REPRODUCED OR COPIED IN WHOLE OR IN PART
NOR CAN THE INFORMATION CONTAINED BE
USED FOR ANY PURPOSE WITHOUT THE EXPRESS
WRITTEN PERMISSION OF TORMACH LLC
NBS
10-2017
1071 Uniek Dr
Waunakee, WI 53597
608-849-8381
UNSPECIFIED TOLERANCES

Table of Contents

Other manuals for Tormach PCNC 440