EasyManua.ls Logo

Tormach PCNC 440 - 2. Site Planning and Prep; 2.1 General Site Requirements; 2.1.1 Space Requirements

Tormach PCNC 440
183 pages
Print Icon
To Next Page IconTo Next Page
To Next Page IconTo Next Page
To Previous Page IconTo Previous Page
To Previous Page IconTo Previous Page
Loading...
Chapter 2
21
UM10372_PCNC440_Manual_0221A
SiTE PlANNiNg ANd PREP
2. SiTE PlANNiNg ANd PREP
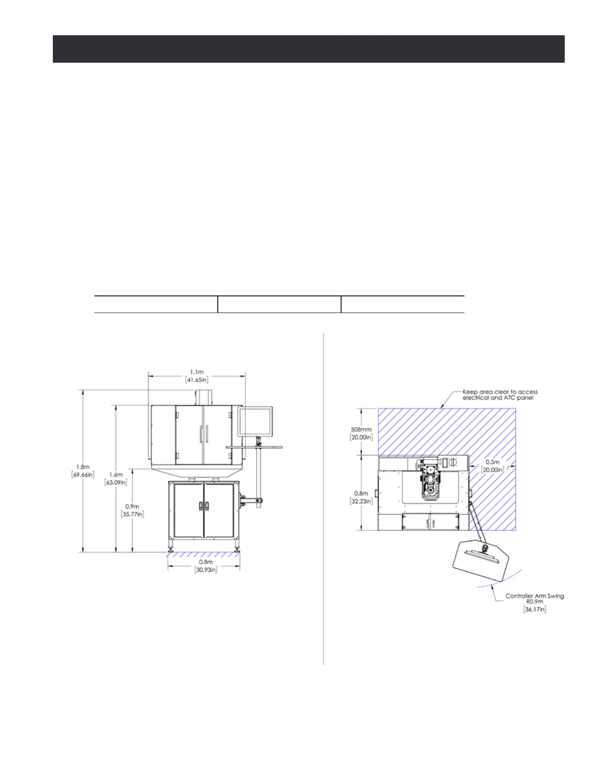
This secon covers required site preparaons prior to placing PCNC mill in service.
2.1 General Site Requirements
The area should be well lit, dry, have proper venlaon, provide for unobstructed machine
moon/operaon, and ensure unrestricted access to PCNC mill controls.
2.1.1 Space Requirements
Minimum oor space requirements are as follows:
Width Depth Height
62 in. (1.6 m) 52 in. (1.3 m) 70 in. (1.8 m)

Table of Contents

Other manuals for Tormach PCNC 440