EasyManua.ls Logo

Tormach PCNC 440 - PCNC 440 4 th Axis Wiring

Tormach PCNC 440
183 pages
Print Icon
To Next Page IconTo Next Page
To Next Page IconTo Next Page
To Previous Page IconTo Previous Page
To Previous Page IconTo Previous Page
Loading...
Chapter 11
182
UM10372_PCNC440_Manual_0221A
ElECTRiCAl SCHEMATiCS
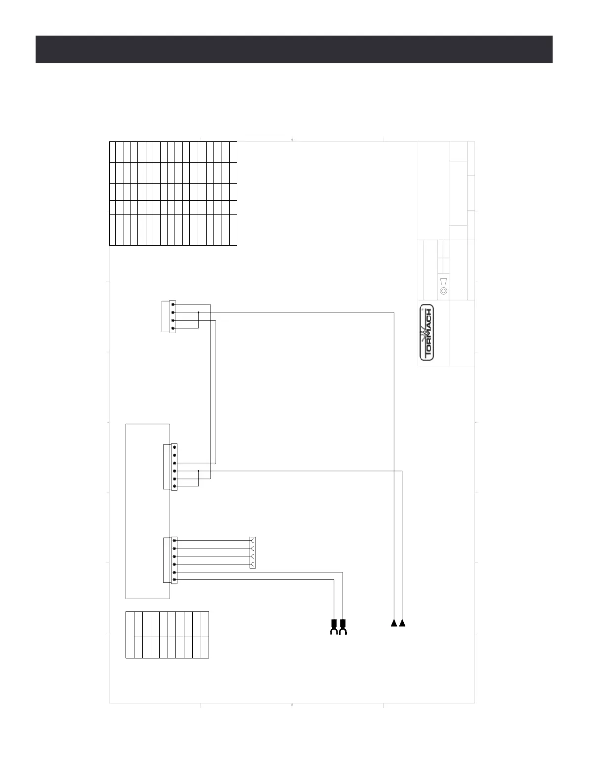
11.2 PCNC 440 4th Axis Wiring
201
200
323
322
321
320
B-
B+
A-
A+
V-
V+
7621
CPC BULKHEAD
SOCKET PN 30235
PLUG PN 30480
BACKSHELL: 31133
STEP+
STEP-
DIR+
DIR-
EN+
EN-
4-
4+
3-
3+
330
330
331
343
342
331
24 V+
24 V-
330
331
48 V-
200
201
48 V+
342
343
CRIMP CONNECTOR 31128
4TH AXIS DRIVER
38686
MX3660 OUTPUT CONNECTOR
32626
ALL WIRES WITH CRIMPED FERRULES
ALL WIRES LABELED ON BOTH ENDS
CIRCUIT
LABEL
COLOR
SIZE
LENGTH
A DRIVER V+
201
BLACK
1.3 mm2
710 mm
A DRIVER V-
200
BLACK
1.3 mm2
710 mm
A MOTOR - A+
320
BLUE
1.3 mm2
850 mm
A MOTOR - A-
321
BLUE
1.3 mm2
850 mm
A MOTOR - B+
322
BLUE
1.3 mm2
850 mm
A MOTOR - B-
323
BLUE
1.3 mm2
850 mm
A STEP +
331
RED
0.33 mm2
130 mm
A STEP -
343
BLACK
0.33 mm2
650 mm
A DIR +
331
RED
0.33 mm2
450 mm
A DIR -
342
BLACK
0.33 mm2
650 mm
OUT 3 -
330
BLACK
0.33 mm2
400 mm
OUT 4 -
330
BLACK
0.33 mm2
130 mm
DRIVER DIP SWITCHES
SWITCH
POSITION
SW1
OFF
SW2
OFF
SW3
ON
SW4
ON
SW5
ON
SW6
ON
SW7
ON
SW8
OFF
D
C
B
A
A
B
C
D
1
2
3
4
5
6
7
8
8
7
6
5
4
3
2
1
MATERIAL
DATE
DRAWN BY
TITLE:
SIZE
B
DWG. NO.
REV
WEIGHT:
SCALE: 1:1
B
PCNC 440
4TH AXIS WIRING
SHEET 2 OF 2
DO NOT SCALE DRAWING
THIS DRAWING CONTAINS PROPRIETARY AND
CONFIDENTIAL INFORMATION BELONGING
TO TORMACH LLC. THIS DRAWING MAY NOT BE
REPRODUCED OR COPIED IN WHOLE OR IN PART
NOR CAN THE INFORMATION CONTAINED BE
USED FOR ANY PURPOSE WITHOUT THE EXPRESS
WRITTEN PERMISSION OF TORMACH LLC
NBS
10-2017
1071 Uniek Dr
Waunakee, WI 53597
608-849-8381
UNSPECIFIED TOLERANCES

Table of Contents

Other manuals for Tormach PCNC 440