EasyManua.ls Logo

WSTECH APS Series - Figure 82: AC Connection (APS with 2 Apus); Table 19: AC Connection

WSTECH APS Series
213 pages
Print Icon
To Next Page IconTo Next Page
To Next Page IconTo Next Page
To Previous Page IconTo Previous Page
To Previous Page IconTo Previous Page
Loading...
Original Operating Instructions
APS Series Outdoor Hybrid Inverter
Installation
APS-Series 120 Operating Instructions v320 EN
Page 101 of 213
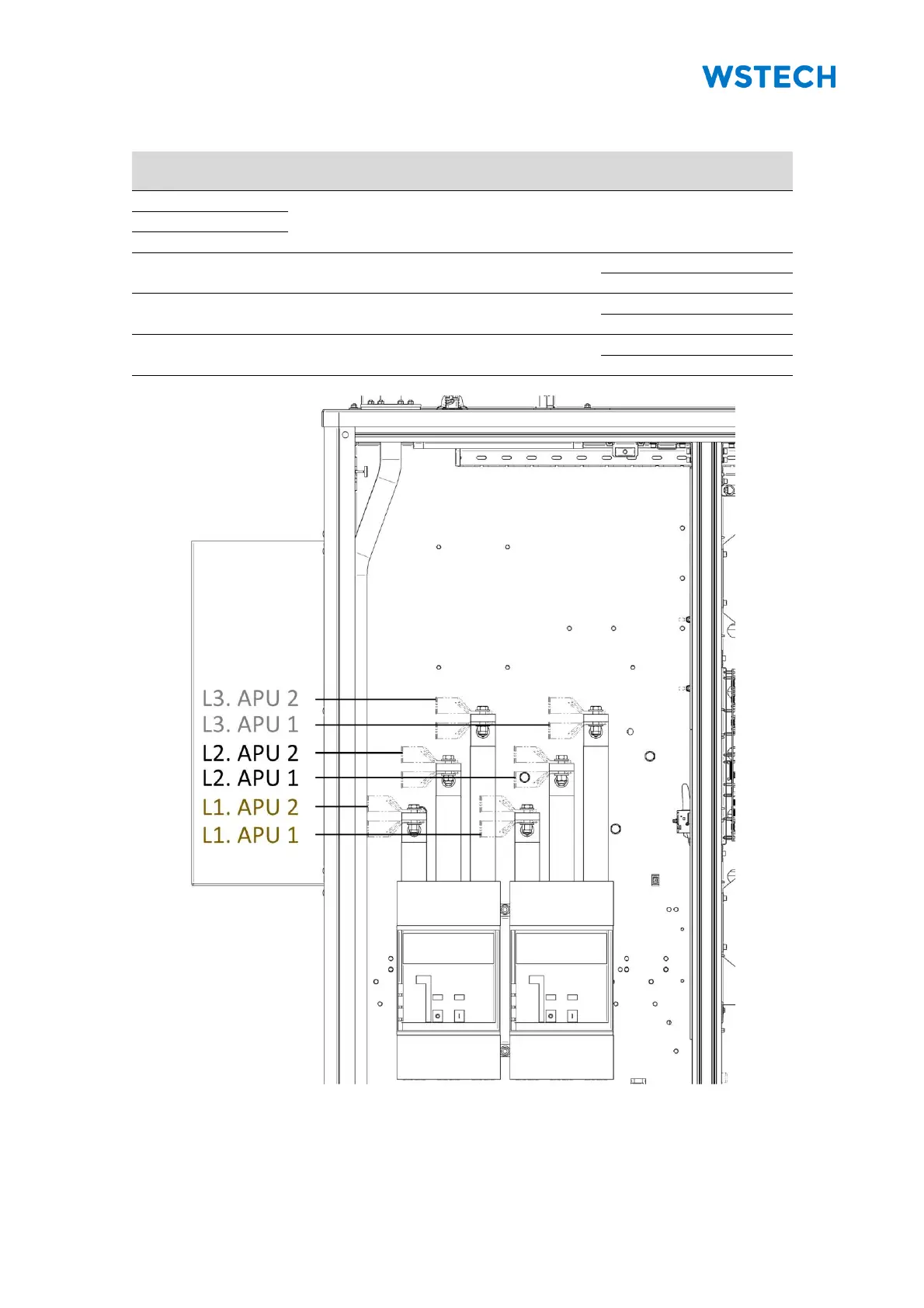
Table 19: AC connection
AC Connection
for APUs
Remarks
Max. quantity of
AC cable
L1. APU 1 + 2
AC terminals for APU 1 and APU 2
connected inside the cabinet
4 (for each terminal)
L2. APU 1 + 2
L3. APU 1 + 2
L1. APU 3 +
L1. APU 4
Must be connected at the
transformer
4 (for each terminal)
4 (for each terminal)
L2. APU 3 +
L2. APU 4
Must be connected at the
transformer
4 (for each terminal)
4 (for each terminal)
L3. APU 3 +
L3. APU 4
Must be connected at the
transformer
4 (for each terminal)
4 (for each terminal)
Figure 82: AC connection (APS with 2 APUs)

Table of Contents