EasyManua.ls Logo

YASKAWA MP920 - Cable Specifications

YASKAWA MP920
336 pages
Print Icon
To Next Page IconTo Next Page
To Next Page IconTo Next Page
To Previous Page IconTo Previous Page
To Previous Page IconTo Previous Page
Loading...
8 Example Communications Module Applications
8.4.2 Cable Specifications
8-24
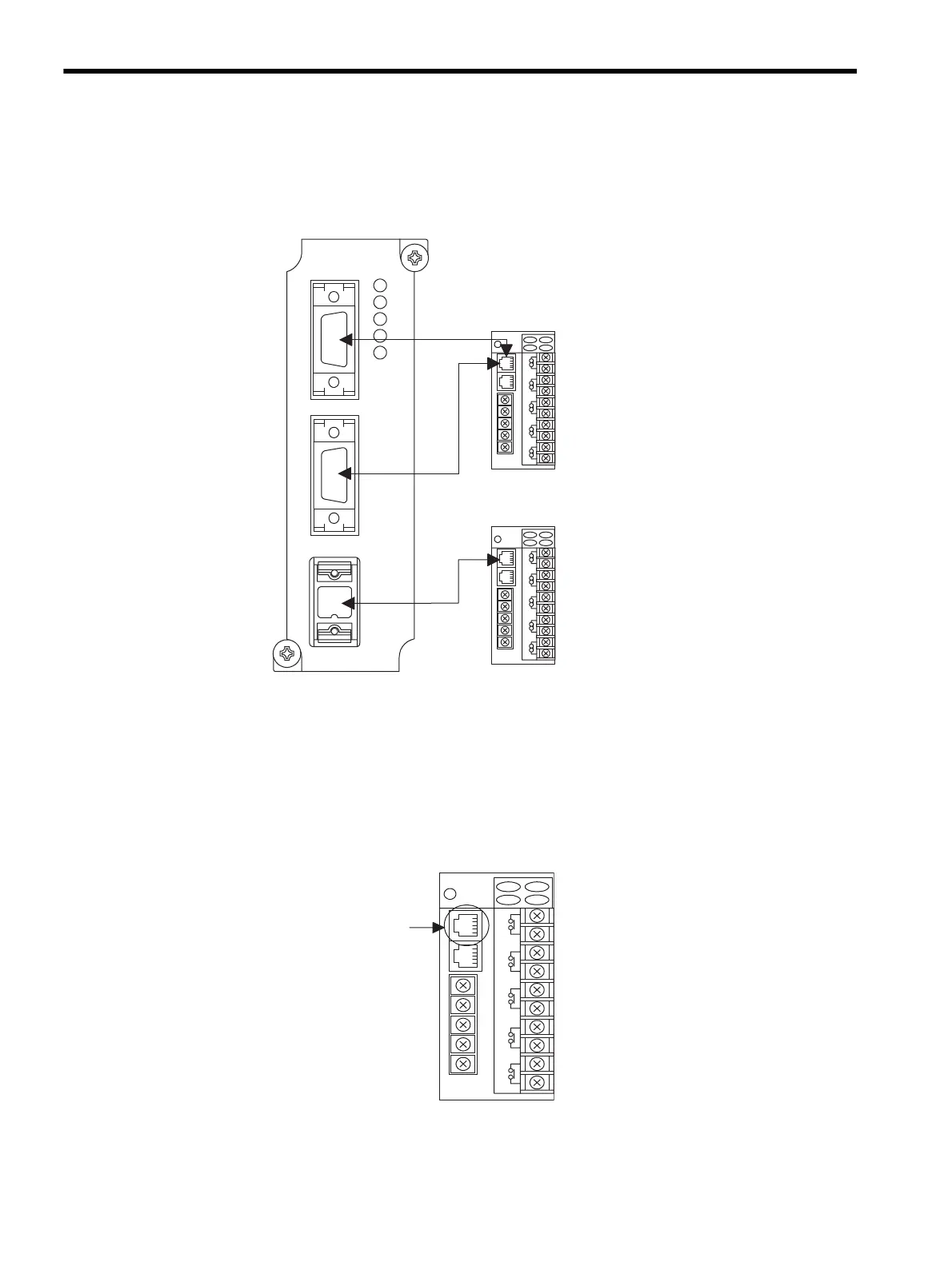
8.4.2 Cable Specifications
Connection Cables for SR-Mini Temperature Controller
SR-Mini PCP Module
The three interfaces listed below are supported. Specify the desired one when ordering.
• RS-232C
• RS-422A
• RS-485
CN2
CN1
RUN
ERR
TRX1
TRX2
TRX3
CN3
217IF
RS232/422
SR-Mini
SR-Mini
Interface connector

Table of Contents

Related product manuals