EasyManua.ls Logo

YASKAWA MP920 - 218 IFA Module

YASKAWA MP920
336 pages
Print Icon
To Next Page IconTo Next Page
To Next Page IconTo Next Page
To Previous Page IconTo Previous Page
To Previous Page IconTo Previous Page
Loading...
Appendix E Module Appearance
E-4
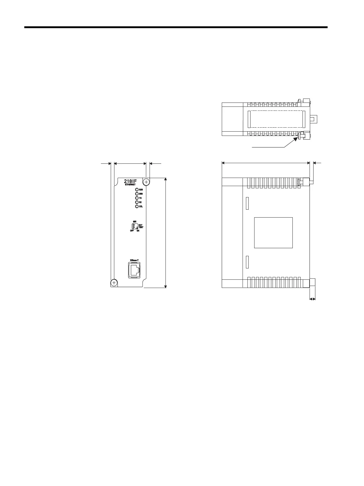
E.3 218IFA Module
Description: 218IFA
Model: JEPMC-CM210A
M4 mounting screw
4. 5 39.7
4. 5
130
105
5
8
Model
nameplate
Units: mm

Table of Contents

Related product manuals