EasyManua.ls Logo

YASKAWA MP920 - Page 46

YASKAWA MP920
336 pages
Print Icon
To Next Page IconTo Next Page
To Next Page IconTo Next Page
To Previous Page IconTo Previous Page
To Previous Page IconTo Previous Page
Loading...
3 Communications Protocols
3.3.1 Master Function
3-14
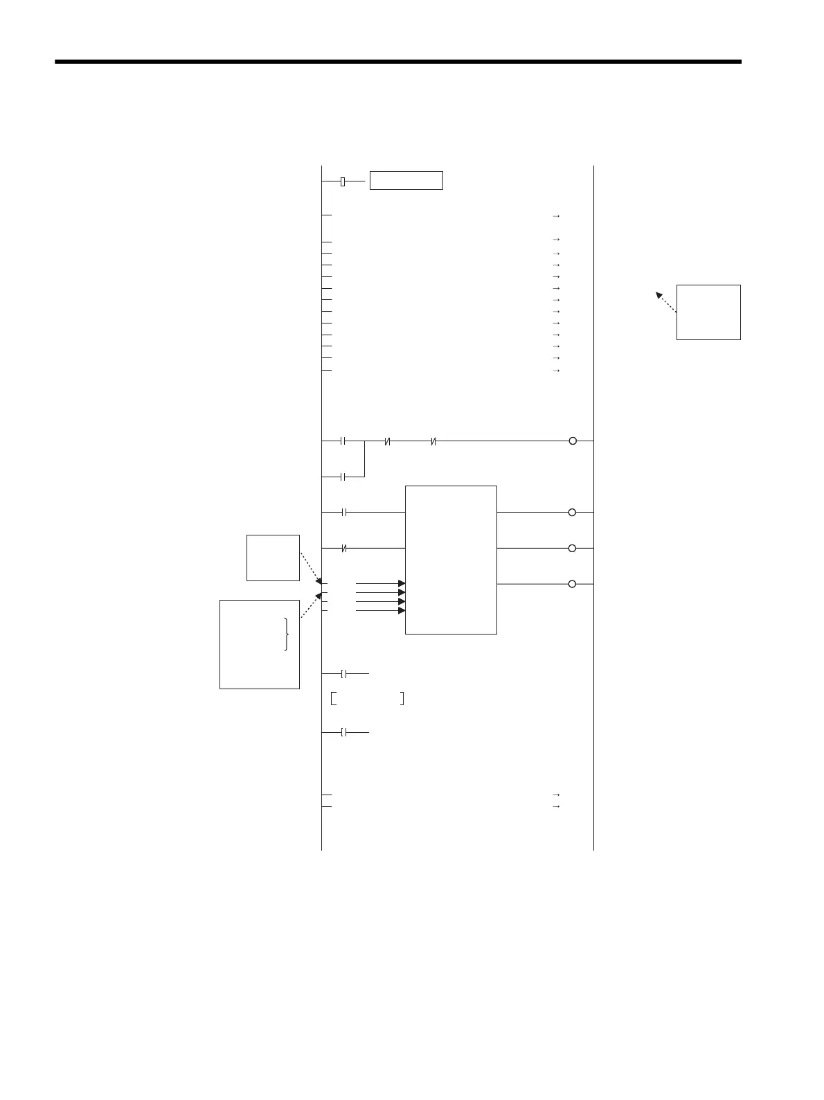
MSG-SND Program
In the top half, the Master function (MSG-SND) parameters are set in the first scan after star-
tup.
In the lower half, messages are transmitted. At this time, the Communications Module type
and the protocol type are set in the device type (DEV-TYP) and protocol type (PRO-TYP),
respectively, as the Master function inputs.
DB000212
Command
DB000201
Function send instruction
Command
DB000201
DB000210
DB000211
DB000212
Executing
Normal completion
Abnormal completion
MSG-SND
EXECUTE BUSY
ABORT COMPLETE
DEV-TYP ERROR
PRO-TYP
CIR-NO
CH-NO
SEND PARAM
DA00000
00006
00001
00001
00001
Always ON
SB000004
MEMOBUS communications
Line No.1
Channel No.1
The normal completion or abnormal
completion coil turns ON at proces-
sing completion.
Sends a message to
connection ST#1.
The coil turns ON when the CPU
receives the command.
Normal completion
Abnormal completion
Normal counter
Error counter
DB000211
DB000212
IFON
IEND
DEND
INC DW00024
INC DW00025
DW00000
DW000
26
DW00027
Processing result stored
Status stored
DW00001
Ended by a transmission error
Normal pulse counter added
Error pulse counter added
Turns ON after command message has
been completed normally and response
message has been received normally.
Set the parameters in the first
scan after startup
SB000003
DW register clear
Remoto station No.
Function code setting (readout)
00001
00003
00000
00100
00000
00000
00000
00000
00000
DW00002
DW00004
DW00005
DW00006
DW00007
DW00008
DW00009
DW00010
DW00011
Data address setting (address 0)
Data size setting (100 words)
Remote PLC No. setting
(CP#1)
Coil offset setting
IEND
Relay offset setting
Input offset setting
Holding register offset
setting
00000
00000
DW00024
DW00025
Normal pulse counter clear
Error counter clear
IFON
FOR i=0 TO 31 BY 1
FEND
0DW0000i
00000 DW00014 System clear
215IF=1
217IF=5
218IF=
6
Always ON Command
Normal
completion
DB000211
Abnormal
completion
SB000004
DEV-TYP
Set the interface
type.
PRO-TYP
= 1
Set the protocol type.
Extended MEMOBUS
(MEMOBUS alias)
MEMOBUS
MELSEC
OMRON
No protocol = 2
(Word specification)
No protocol = 3
(Byte specification)
L scan: SB03
H scan: SB01
DB000201
When multiple CPUs
can be mounted in the
remote PLC:
CP-317
CP-9200SH
CP920
Other: 0

Table of Contents

Related product manuals