EasyManua.ls Logo

Bardac PLX - Earthing Diagram for T Ypical Installation

Default Icon
235 pages
Print Icon
To Next Page IconTo Next Page
To Next Page IconTo Next Page
To Previous Page IconTo Previous Page
To Previous Page IconTo Previous Page
Loading...
216 Installation
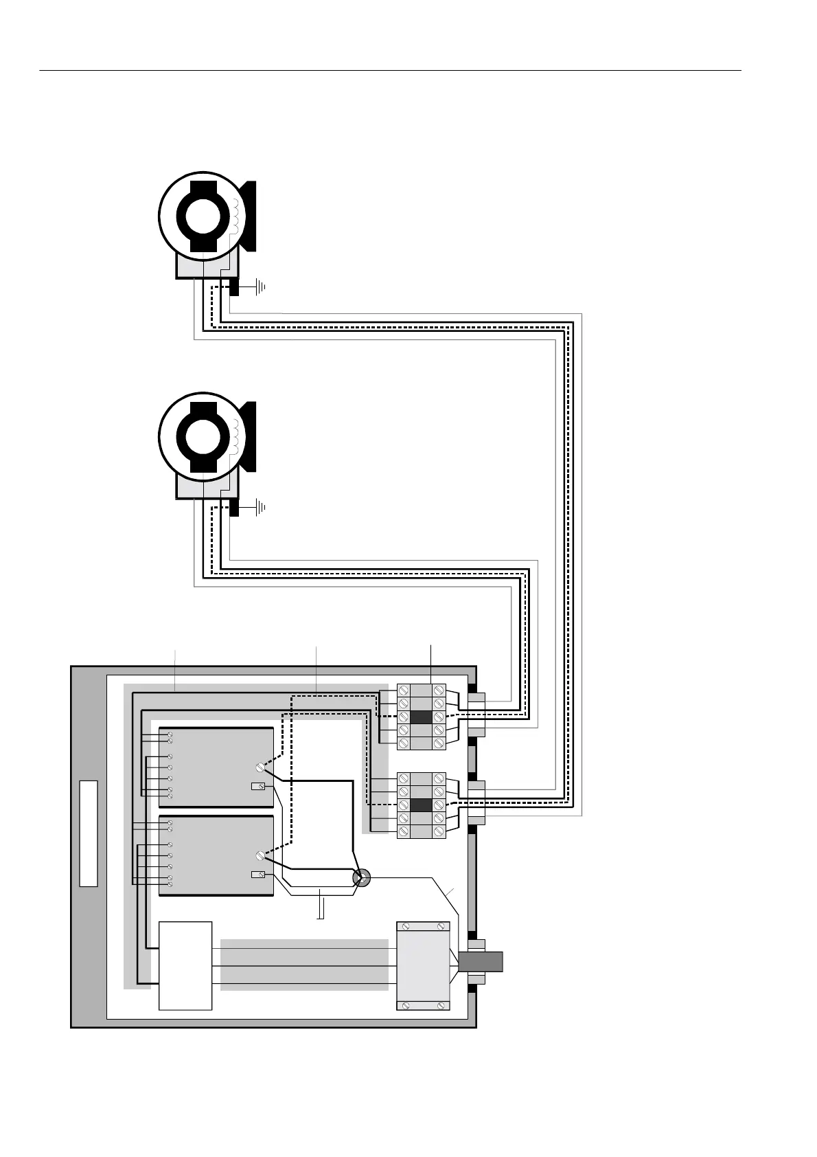
14.11.3 Earthing diagram for typical installation
A L1 L2 L3 F A L1 L2 L3 F
T13
CH ASSIS
EARTH
CHASSIS
EARTH
T13
FUSES, M AIN
CONTA C T ORS,
LINE REA C TORS
MAIN INPUT
FILTER
IN COMIN G
SAFETY
EARTH
FILTER CASE
BONDED T O
BA CKPLATE
DRIVE EARTHS
CONNEC TED T O
ST AR POIN T
CLEAN
EARTH
FOR
CONTROL
SIGN ALS
MOTOR C A BLE
EARTHS
CONNECTED
DIRECTLY T O
CH ASSIS
EARTH
MOTOR EARTHS
RUN ALON GSIDE
DRIVE C ABLES
IN C ABINET
SEGREGATED C OND UIT
> 300mm FROM OTHER
CABLES F OR MOT OR
CABLES AND SUPPLY
OUTG OING MOT OR
CABLE TERMINALS
(MOTOR EART HS
ISOLA TED,
NOT
EARTHED A T THIS
POIN T)
MOTOR C A BLES MUST H A VE A SEPERA TE
IN TERNAL EARTH C OND UCTER TH AT IS
BONDED AT ONE END T O THE DRIVE
CH ASSIS EARTH AN D AT THE OTHER END
TO THE MOTOR C A SE. EXTERNAL SCREENING
OR ARMOURING IS REC OM MEN DED AND
SHOULD BE EARTH BONDED AT BOTH ENDS
MOTOR 1 MOTOR 2
CONTROL AN D SIGN AL C A BLES
SHOULD BE SCREENED WITH
THEIR SCREEN CONNEC TED ONLY
AT THE DRIVE M ODULE, TO A
0V TERMINAL
DRIVE MODULES SH OULD BE SEGREG A TED
BY > 300 mm FROM OTHER APPARATUS
AN D SH OULD BE AS CLOSE AS POSSIBLE
TO THEIR OUT GOIN G C A BLE TERMINALS
C ON TROL CABINET
BACKPLA TE
DRIV E 2
DRIVE 1

Table of Contents