EasyManua.ls Logo

Bardac PLX - Page 60

Default Icon
235 pages
Print Icon
To Next Page IconTo Next Page
To Next Page IconTo Next Page
To Previous Page IconTo Previous Page
To Previous Page IconTo Previous Page
Loading...
60 CHA NGE PARA METERS
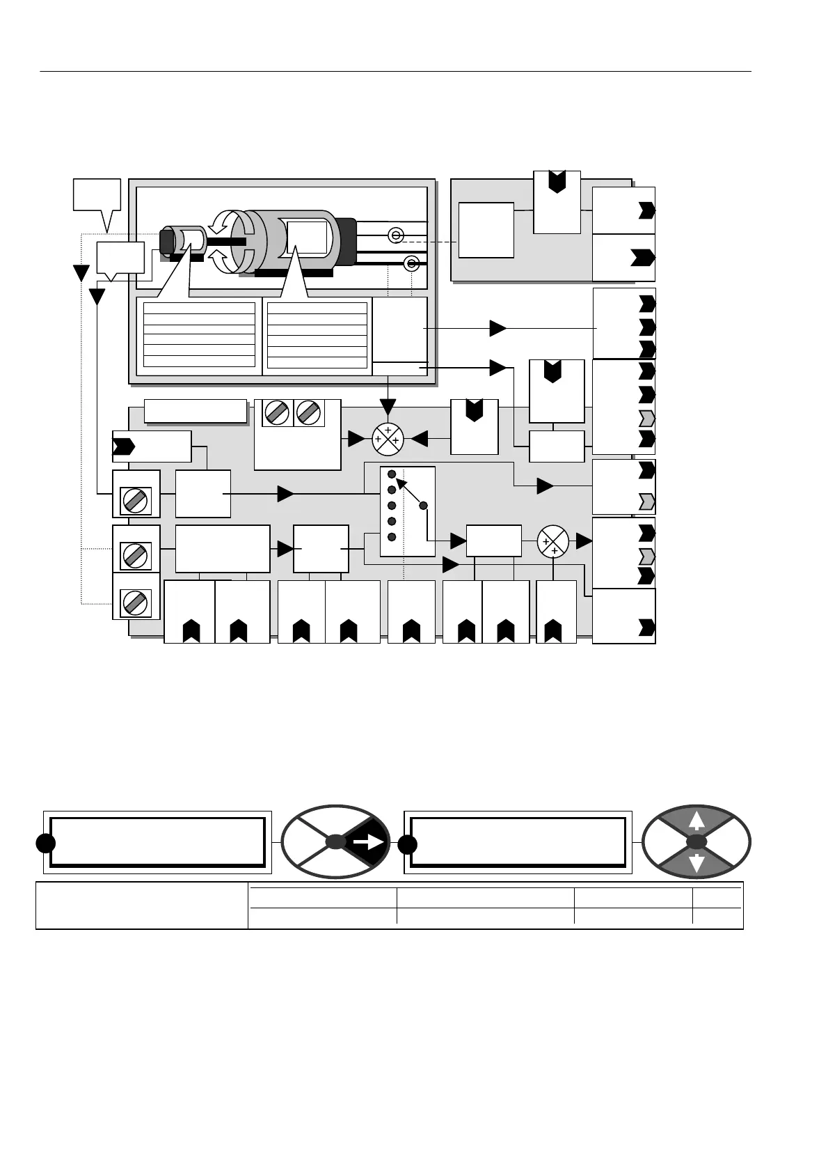
6.1.1 C ALIBRA TION / Block diagram
6.1.2 C ALIBRA TION / Rated armature amps PIN 2 QUICK ST ART
Note the presence of a PIN number on the bottom line sho ws that one more step right takes us to the end of
a branch.
Then we reach the end of a branch of the tree and this has resulted in a parameter value on the lo wer line
which can be modified by use of the up/do wn keys.
This current may be less than the value on the motor data-plate, but must not normally be higher.
(However, see also 6.8.3.1.2 How to get overloads greater than 150% using 82)O/LO A D % T ARGET).
See 13.13.4 DRIVE PERSONALITY / Armature current burden resistance PIN 680
PIN 12 6
A V mon
PIN 12 7
A V % mon
PIN 12 8
Bemf %
C ALIBRA TIO N 3
2)RA TED ARM A MPS
2)RA TED ARM A MPS
X X X . X A M P S
The desired 100% continuous
rated motor current in amps
PARA METER RANGE DEFAULT PIN
RA TED ARM AMPS 33 -100 % of PL/X ratin
g
(33 %)X X X.X A 2
R
R
DC shunt wound motor
Tachogenerator
And/or encoder
F + /F-
A + / A-_
Data
Plate
MO TOR DA T APLA TE
Max rated arm amps
Max rated arm volts
Max rated field amps
Max rated field volts
Base rated RPM
TA CH O D AT APLA TE
Volts / 1000 RPM
Type:Bipolar/Rectified/A C/DC
EN CODER D A T APL A TE
Lines per revolution
Isolated
sensors
for arm
current
and PL/X
A + / A-
terminal V
Av
|
IA
Rated
field
Amps
PIN 4
PIN 144
Field
Amps
Feedback
PIN 143
Field
Amps %
Feedback
Internal
isolated
sensors
for field
current
Max Tacho
Volts PIN 8
T 2 6
Input pulse sign
detector and freq
measurement
Arm Cur fb
mon A MPS
PIN 13 5
% PIN 1 34
Unfiltered
% PIN 7 19
DC Kw atts
PIN 17 0
+ /-
and
X
Quadrature
enable
PIN 10
T17 A
T16 B
Speed
Fb
Type
PIN 9
Encoder
lines
PIN 11
Mot/Enc
Speed
Ratio
PIN 12
Encoder
sign
PIN 13
X
Base
rated
RPM
PIN 5
Desired
M AX
RPM
PIN 6
X
Zero
speed
offset
PIN 7
Rated
Armature
Amps
PIN 2
IR
comp
PIN 14
PIN 132
Encoder
Rpm
Monitor.
Unfiltered
T4 1 T43
A V sensing inputs
only used with DC
side contactors
C ALIBRA TION
X
Encoder
pulses
Tacho
voltage
PIN 131
Speed Fb
Monitor.
Unfiltered
PIN 71 5
(RPM Pins
13 0/71 7
)
PIN 129
Tacho Volts.
Unfiltered %
Tacho mon
PIN 71 6

Table of Contents