EasyManua.ls Logo

Geely FC - Page 413

Geely FC
419 pages
Print Icon
To Next Page IconTo Next Page
To Next Page IconTo Next Page
To Previous Page IconTo Previous Page
To Previous Page IconTo Previous Page
Loading...
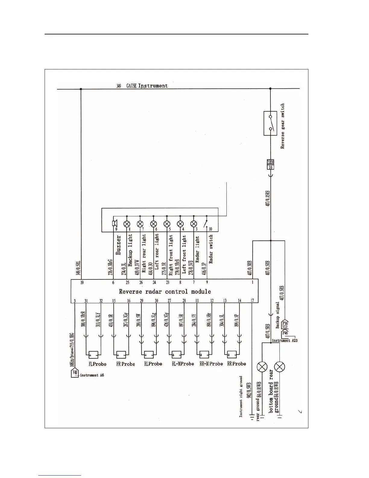
Reversing radar system
Electrical schematic diagram--Reversing radar system
 402 

Table of Contents

Related product manuals