EasyManua.ls Logo

Siemens simovert masterdrives - Page 1029

Siemens simovert masterdrives
1547 pages
Print Icon
To Next Page IconTo Next Page
To Next Page IconTo Next Page
To Previous Page IconTo Previous Page
To Previous Page IconTo Previous Page
Loading...
Function diagram
87654321
fp_mc_517_e.vsd
Hardware configuration
MASTERDRIVES MC
13.08.08
Part 2
-517 -
V2.5
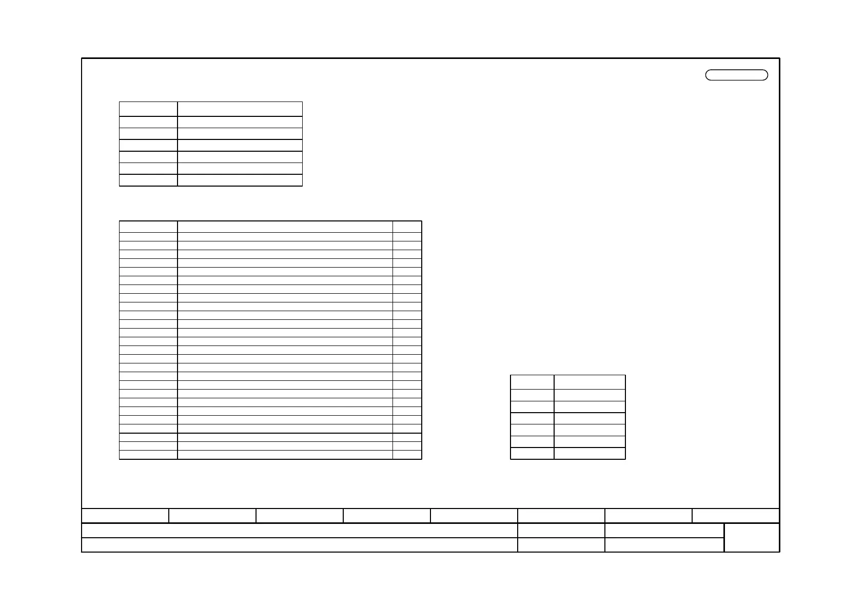
r826 Meaning
90 to 109 Mainboards oder Control Unit
110 to 119 Sensor Board (SBx)
120 to 129 Serial Communication Board (Scx)
130 to 139 Technology Board
140 to 149 Communication Board (Cbx)
150 to 169 Special boards (EBx, SLB)
Board Meaning
CUVC Control Unit Vector Control
CUMC Control Unit Motion Control Compact
r826
92
93
CUMC+ Control Unit Motion Control Compact PLUS 94
SCB1 Serial Communication Board 1 (LWL) 121
SCB2 Serial Communication Board 2 122
T100 Technology board 131
T300 Technology board 131
T400 Technology board 134
CBX Communication Board 14x
CBP Communication Board PROFIBUS 143
CBC Communication Board CANBUS 146
CBP2 Communication Board PROFIBUS 2 148
EB1 Expansion Board 1 151
EB2 Expansion Board 2 152
SLB SIMOLINK-Bus-Interface 161
SBP Sensor Board Puls 111
SBM Sensor Board Encoder/Multiturn (not supported for V2.0 and above) 112
SBM2 Sensor Board Encoder/Multiturn 2 113
SBR1 Sensor Board Resolver 114
SBR2 Sensor Board Resolver 2 115
CBD Communication Board DeviceNet 145
CBL Communication Board CC-Link 147
CUSA Control Unit Sinus AFE 108
CUVC+ Control Unit Vector Control Compact PLUS 95
CUMP Control Unit Motion Control Compact PLUS Performance 2 97
CUPM Control Unit Motion Control Performance 2 96
n911 Firmware version
37375 V1.02
37631 V1.03
37887 V1.04
38143 V1.05
38399 V1.06
37375 V1.02
37631 V1.03
37887 V1.04
38143 V1.05
38399 V1.06
SBM2: Assignment of firmware version to
parameter n911
n959.70 = 8
38655 V1.07

Table of Contents

Other manuals for Siemens simovert masterdrives

Related product manuals