EasyManua.ls Logo

Siemens simovert masterdrives - Page 1135

Siemens simovert masterdrives
1547 pages
Print Icon
To Next Page IconTo Next Page
To Next Page IconTo Next Page
To Previous Page IconTo Previous Page
To Previous Page IconTo Previous Page
Loading...
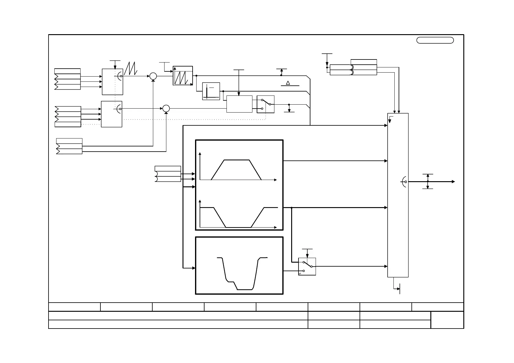
Function diagram
87654321
fp_mc_834_e.vsd
Technology Option
MASTERDRIVES MC
03.03.08
Synchronism - engaging/disengaging actions catch-up
-834 -
[835.1]
<1> The position setpoint master axis must be wired up. Optionally,
the speed setpoint can also be used to increase the accuracy
of the speed precontrol. The position setpoint and speed
source must match.
Example: Virtual Master
U600.3 = KK0817 [LU]
U600.6 = KK0820 [%]
Example: Real Master
U600.2 = KK0608 [LU]
U600.5 = KK0624 [%]
<2> Here give preference to wiring of source module "Additive
Offset" [794]
U460.1 = KK0835 [LU]
U460.2 = KK0832 [%]
KK7031 = Double word 1 of SIMOLINK [150]
KK0817 = Position of virtual master axis [820]
KK0816 = Speed of virtual master axis [820]
KK0608 = Position of real master [833]
KK0624 = Speed of real master [833]
If catch-up mode is selected,
the catch-up on FD 836.2 is inactive.
Catch-up
see sheet [837]
Input
catch-up
[837.1]
Output
catch-up
[837.8]
2
1
0
2
1
0
.01(7031)
.02 (0)
.03 (817)
.04 (0)
.05 (0)
.06 (0)
Starting operation
Stopping operation
Catch-up
Engaging
see sheet [834a/834b/834c]
Disengaging
see sheet [834a/834b/834c]
Output
engaging/disengaging
[834a-c.8]
Input
engaging/disengaging
[834a-c.1]
+
+
t
d
dt
Scaling
V setpoint [%]
Master axis
("master val")
.01 (0) [LU]
.02 (0) [%]
U600 <>0
Continuous operation
(valid for sheet [834] ... [843],
recommended value: U953.33 = 4)
see also [831.3]
3
2
1
0
2
1
2
0
[OPERATION]
0.1 (804)
0.2 (805)
1
0
<1>
<2>
for precontrol
sampling time
LU
0
0
V2.5
KK
U600
Position setpoint
Master axis
("master value")
Master value source
U606 (0)
KK
U460
Q. Add.offset M.
U953.33 = ___(20)
B
U656 (0)
B0804
B0805
KK
KK
KK
KK
KK
Master axis cycle length
> 0: Rotary axis length [in LU]
= 0 : Linear axis
U601 (4096) [ACL_M]
KK
B
Scaling rate
Master [1000 LU/min]
0...20 000 000.00
U607.2 (0)
Synchronism operating mode 0...3
U602 (0)
V master setpoint [%]
n653.5
Abs. master
setpoint [LU]
n655.5
Speed setpoint[%]
n653.4
Position setpoint [LU]
n655.4
U607.2 [834.4]
current sync. mode
0 … 3
n658
B 0.1 (0)
U888
B 0.2 (0)
U888 specifies the direction of the position difference of the master
value during synchronization.
1.) Sign of the position difference of the master value is
being processed
(U888.01 input value = 0) AND (U888.02 input value = 0)
(U888.01 input value = 1) AND (U888.02 input value = 1)
2.) Positive position differences of the master value expected
(U888.01 input value = 1) AND (U888.02 input value = 0)
3.) Negative position differences of the master value expected
(U888.01 input value = 0) AND (U888.02 input value = 1)

Table of Contents

Other manuals for Siemens simovert masterdrives

Related product manuals