EasyManua.ls Logo

Siemens simovert masterdrives - Page 987

Siemens simovert masterdrives
1547 pages
Print Icon
To Next Page IconTo Next Page
To Next Page IconTo Next Page
To Previous Page IconTo Previous Page
To Previous Page IconTo Previous Page
Loading...
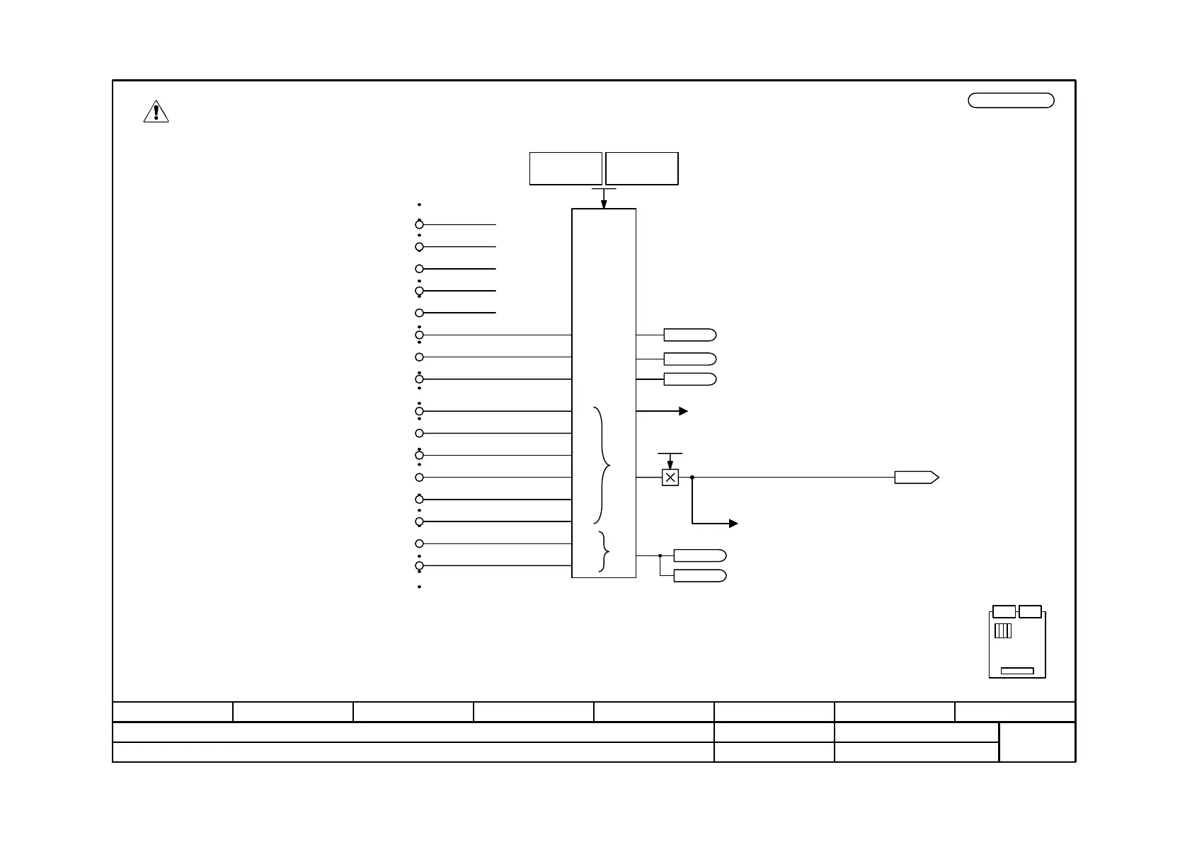
Function diagram
87654321
fp_mc_250_e.vsd
Encoder
MASTERDRIVES MC
08.09.04
Pulse encoder evaluation, motor encoder (SBP board in slot C)
-250 -
V2.5
PTC / KTY:
See "Actual
values" sheet
[491]
<2>
Terminal assignment -X400:
60 : Supply voltage
61 : Supply ground
62 : Temp -
63 : Temp +
64 : Rough/fine ground
65 : Rough pulse 1 (HTL level)
66 : Rough pulse 2 (HTL level)
67 : Fine pulse 2 (HTL level)
CTRL - = M
Zero pulse -
Zero pulse +
Track B-
Track B+
CTRL +
-X401/70
-X401/71
-X401/72
-X401/73
-X401/74
-X401/75
Terminal assignment -X401:
68 : Track A+
69 : Track A-
70 : Track B+
71 : Track B-
72 : Zero pulse
73 : Zero pulse -
74 : CTRL +
75 : CTRL - = M
Track A-
-X401/69
Track A+
-X401/68
Fine pulse 2
Rough pulse 1
Rough/fine ground
+ Temp
-Temp
Rough pulse 2
-X400/62
-X400/63
-X400/64
-X400/65
-X400/66
-X400/67
-VPP
-X400/61
+ VPP
-X400/60
Pulse #
60 ... 20000
P151.01 (1024)
SBP Config
0000 ... 0133
P150.01 (0000)
Pulse
encoder
evaluation
with pulse
quadrupling
to evaluation Slot B
Setting of P150.01:
A/B/CTRL track input level
xxx0: A/B track HTL unipolar
xxx1: A/B track TTL unipolar
xxx2: A/B track HTL differential input
xxx3: A/B track TTL/RS422
Zero track input level
xx0x: zero track HTL unipolar
xx1x: zero track TTL unipolar
xx2x: zero track HTL differential input
xx3x: zero track TTL/RS422
Encoder power supply
x0xx: 5 V
x1xx: 15 V
P130 = 5 => SBP in slot C
P130 = 6 => SBP in slot A: with CUPM
=> SBP in slot B: with Compakt PLUS
<1> Range of values = 0 ... 2
32
-1
for one encoder revolution
<1>
For further processing, see
"Actual values" sheet [500.2]
<2> Evaluation of motor temperature not possible when SBP is in slot C
Terminating resistors:
Switches S1.1 to S1.3 closed -> active
(factory setting)
Power supply encoder
Switch S1.4 open -> active
(factory setting)
X400 X401
1234
S1
7560
SBP
<3>
<3>
The encoder connection may neither be closed nor removed when live!
The converter must be de-energized (24 V electronics power supply disconnected and DC link
fully discharged)!
Binectors
B0060 to B0063
B0061
SBP RoughPulse1
B0062 SBP RoughPulse2
B0063 SBP FinePulse2
KK0090
Theta(mech.)
B0060 SBP CtrlTrack
B0070 MeasV valid
n959.32 = 4
Transmission ratio
P116.1...2

Table of Contents

Other manuals for Siemens simovert masterdrives

Related product manuals