EasyManua.ls Logo

Siemens simovert masterdrives - Page 988

Siemens simovert masterdrives
1547 pages
Print Icon
To Next Page IconTo Next Page
To Next Page IconTo Next Page
To Previous Page IconTo Previous Page
To Previous Page IconTo Previous Page
Loading...
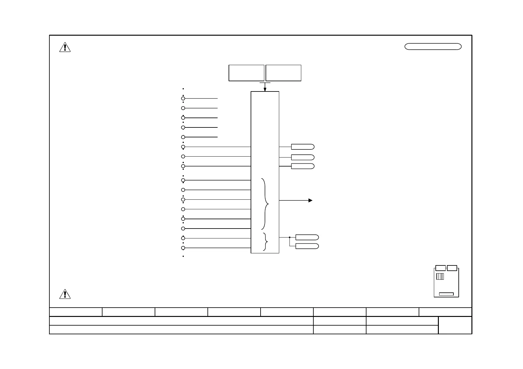
Function diagram
87654321
fp_mc_255_e.vsd
Encoder
MASTERDRIVES MC
07.01.02
Pulse encoder evaluation, external encoder (SBP not in slot C)
-255 -
V2.5
Terminal assignment -X400:
60 : Supply voltage
61 : Supply ground
62 : Temp -
63 : Temp +
64 : Rough/fine ground
65 : Rough pulse 1 (HTL level)
66 : Rough pulse 2 (HTL)
67 : Fine pulse 2 (HTL)
CTRL - = M
Zero/fine pulse -
Zero/fine pulse +
Track B-
Track B+
CTRL +
-X401/70
-X401/71
-X401/72
-X401/73
-X401/74
-X401/75
Terminal assignment -X401:
68 : Track A+
69 : Track A-
70 : Track B+
71 : Track B-
72 : Zero pulse
73 : Zero pulse -
74 : CTRL +
75 : CTRL - = M
Track A-
-X401/69
Track A+
-X401/68
Fine pulse 2
Rough pulse 1
Rough/fine ground
+ Temp
-Temp
Rough pulse 2
-X400/62
-X400/63
-X400/64
-X400/65
-X400/66
-X400/67
-VPP
-X400/61
+ VPP
-X400/60
Pulse #
60 ... 20000
P151.02 (1024)
SBP Config
0000 ... 0133
P150.02 (0000)
Pulse
encoder
evaluation
with pulse
quadrupling
Setting of P150.02:
A/B/CTRL track input level
xxx0: A/B track HTL unipolar
xxx1: A/B track TTL unipolar
xxx2: A/B track HTL differential input
xxx3: A/B track TTL/RS422
Zero track input level
xx0x: zero track HTL unipolar
xx1x: zero track TTL unipolar
xx2x: zero track HTL differential input
xx3x: zero track TTL/RS422
Encoder power supply
x0xx: 5 V
x1xx: 15 V
Current rotor position of the
external machine encoder [335.1]
<1>
The function always has the same
sampling time as in function diagram
335 "Position sensing for external
encoder"
Terminating resistors:
Switches S1.1 to S1.3 closed -> active
(factory setting)
Power supply encoder
Switch S1.4 open -> active
(factory setting)
X400 X401
1234
S1
7560
SBP
<2>
<2>
It is not possible to evaluate the motor temperature for
encoder evaluations that are not inserted in slot C.
WARNING
<1>
The encoder connection may neither be closed nor removed when live!
The converter must be de-energized (24 V electronics power supply disconnected and DC link
fully discharged)!
B0066
SBP RoughPulse1
B0067 SBP RoughPulse2
B0068 SBP FinePulse2
B0065 Control track
B0071 MeasV valid
n959.35 = U950.17 = ___ (6)

Table of Contents

Other manuals for Siemens simovert masterdrives

Related product manuals