EasyManua.ls Logo

SMAR LC700 - Dimensional Drawings of Df93 and Modules

SMAR LC700
184 pages
Print Icon
To Next Page IconTo Next Page
To Next Page IconTo Next Page
To Previous Page IconTo Previous Page
To Previous Page IconTo Previous Page
Loading...
LC700 Architecture
2.21
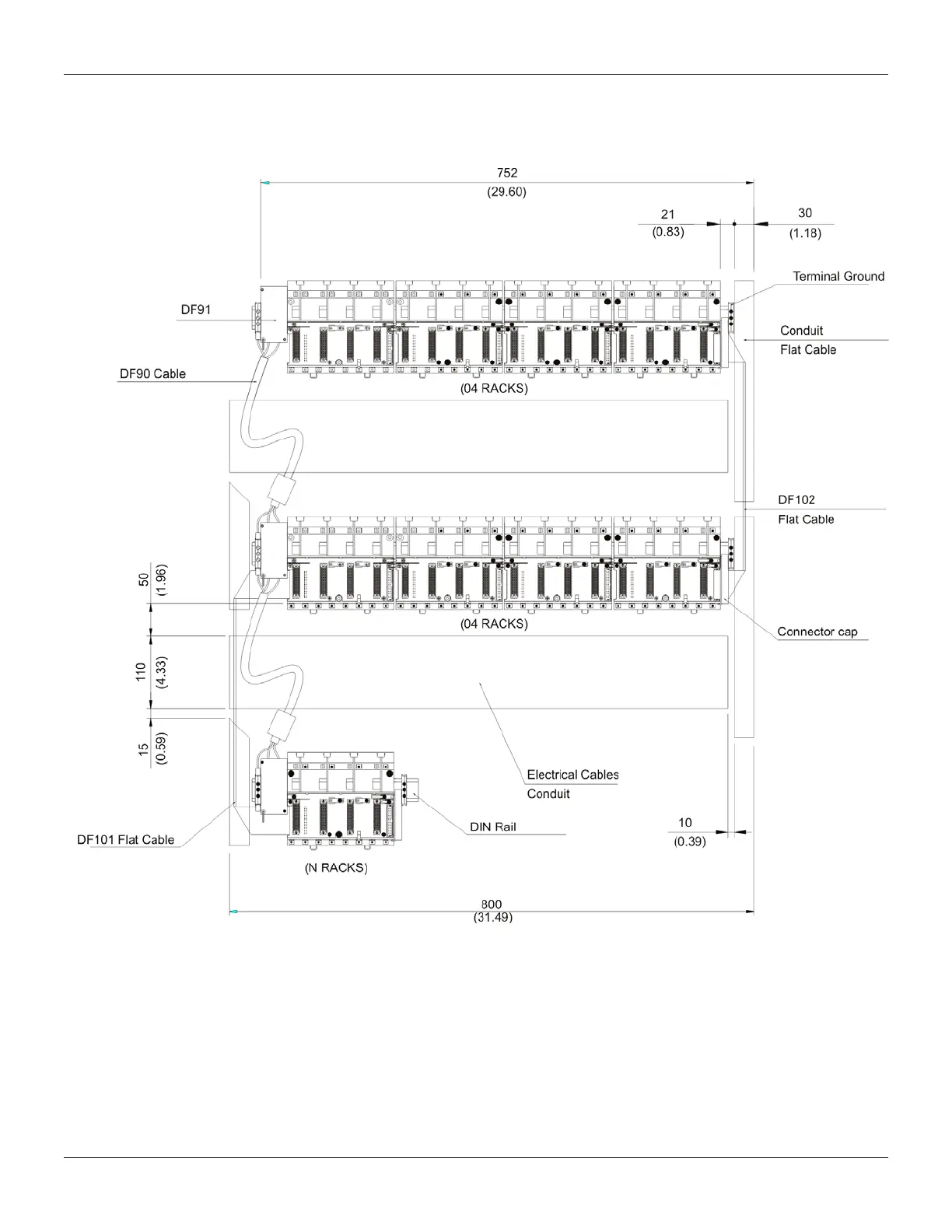
Dimensional Drawings of DF93 and Modules
The following figures shows two possible combinations.

Table of Contents

Related product manuals