EasyManua.ls Logo

TransCore Amtech IT2200 - Cantilever Arm Mount; Figure 4-4 Cantilever Arm Mount (Bistatic Configuration)

Default Icon
204 pages
Print Icon
To Next Page IconTo Next Page
To Next Page IconTo Next Page
To Previous Page IconTo Previous Page
To Previous Page IconTo Previous Page
Loading...
Installing the IT2200 Reader System
4-9
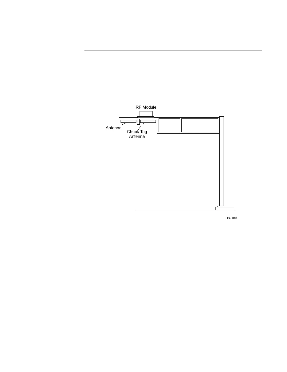
Cantilever Arm Mount
In the cantilever arm mount, the reader logic card is installed in the host computer, and
the RF module, UTA(s), and check tag antenna are attached to a 5.0 to 7.6cm (2- to 3-
in) pipe at the end of the cantilever arm. These components are mounted approxi-
mately 4.5 to 5.5 m (15 to 18 ft) above the road surface. Figure 4-4 illustrates a typical
bistatic laneside cantilever arm mount with two antennas.
Figure 4-4 Cantilever Arm Mount (Bistatic Configuration)

Table of Contents

Related product manuals