EasyManua.ls Logo

Wacker Neuson WL34 - Page 275

Wacker Neuson WL34
348 pages
Print Icon
To Next Page IconTo Next Page
To Next Page IconTo Next Page
To Previous Page IconTo Previous Page
To Previous Page IconTo Previous Page
Loading...
SHB WL34 * 2.0 9-15
Electrical system 9
Diagrams
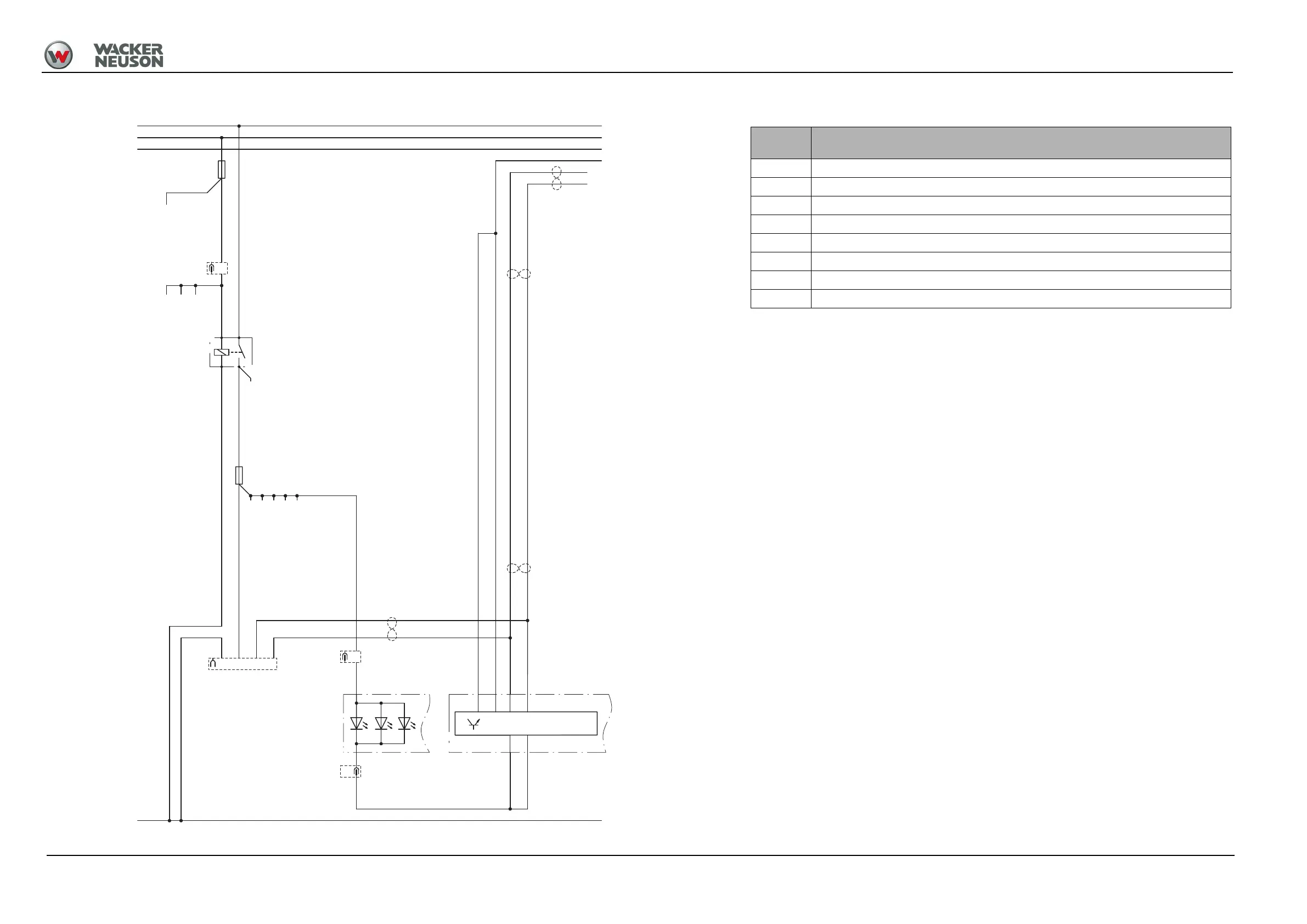
9.8 Electrical diagram – Electronics CAN Bus (FG01-02)
N004.1:42/FG01-1
F028:H/FG09-1
S011:1/FG4-1
S111:5/FG10
S033:5/FG10
S104:A/FG10-1/2
X064:9/FG11-1
K109:30/FG11-1
K058:87/FG03-1
X030:2/FG05-1
15
50
15
50
31 31
3030
6659
ABFG
4
CAN-H
CAN-L
4
5422
18
416
5 V
N004
XE01
K002
RD-6
F026
5 A
RD/WH-2,5
RD/WH
BK
BK
XJ03
WH-0,75
BK-0,75
WH-0,75
BK-0,75
WH-0,75
BK-0,75
Joystick
XJ01
RD/WH-0,5
BK/BN-0,5
BK/BN-0,75
BK/BN-0,75
F003
15 A
X001
GN-1,5
YE/WH-0,75
YE/WH-0,75
YE/WH-0,75
RD/WH-1,5
87
85
30
86
Assign-
ment
Designation
F003 Roll-in stop relay, terminal 85 relay K002
F026 ECU N001/S011/S111/S033/S104/Joystick
K002 High current relay F026
N004 Traction electronics
X001 Instrument panel
XE01 CAN interface for engine
XJ01 Joystick
XJ03 Joystick

Table of Contents

Related product manuals