EasyManua.ls Logo

Yamaha XVS6501997 - Page 27

Yamaha XVS6501997
327 pages
Print Icon
To Next Page IconTo Next Page
To Next Page IconTo Next Page
To Previous Page IconTo Previous Page
To Previous Page IconTo Previous Page
Loading...
2-7
MAINTENANCE SPECIFICATIONS
SPEC
1 2 3 4
Item Standard Limit
2nd ring:
Type
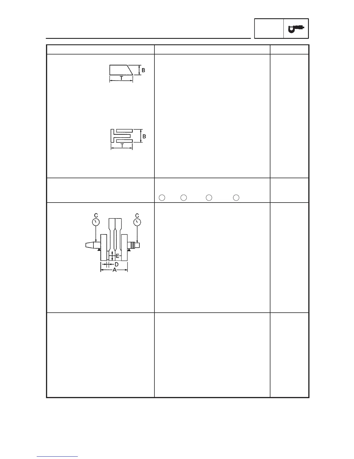
Dimensions (B T)
End gap (installed)
Side clearance
Oil ring:
Dimensions (B T)
End gap (installed)
Taper
1.5 3.6 mm
0.30 X 0.45 mm
0.02 X 0.06 mm
2.5 3.1 mm
0.2 X 0.7 mm
SSS
SSS
0.8 mm
0.12 mm
SSS
SSS
Connecting rod:
Oil clearance
Color code (corresponding size)
0.026 X 0.050 mm
Blue Black Brown Green
SSS
SSS
Crankshaft:
Crank width “A”
Runout limit “C”
Big end side clearance “D”
Big end radial clearance “E”
Journal oil clearance
93.95 X 94.00 mm
SSS
0.270 X 0.424 mm
0.026 X 0.050 mm
0.020 X 0.052 mm
SSS
0.02 mm
SSS
SSS
SSS
Clutch:
Friction plate thickness
Quantity
Clutch plate thickness
Quantity
Clutch spring free length
Quantity
Clutch housing thrust clearance
Clutch housing radial clearance
Clutch release method
Push rod bending limit
2.9 X 3.1 mm
7
1.5 X 1.7 mm
6
39.5 mm
5
0.10 X 0.37 mm
0.015 X 0.043 mm
Inner push, cam push
SSS
2.6 mm
SSS
0.2 mm
SSS
38.5 mm
SSS
SSS
SSS
SSS
0.5 mm

Table of Contents

Related product manuals