EasyManua.ls Logo

YASKAWA MP920 - Page 177

YASKAWA MP920
336 pages
Print Icon
To Next Page IconTo Next Page
To Next Page IconTo Next Page
To Previous Page IconTo Previous Page
To Previous Page IconTo Previous Page
Loading...
7.6 Connecting 218IF Modules
7-31
7
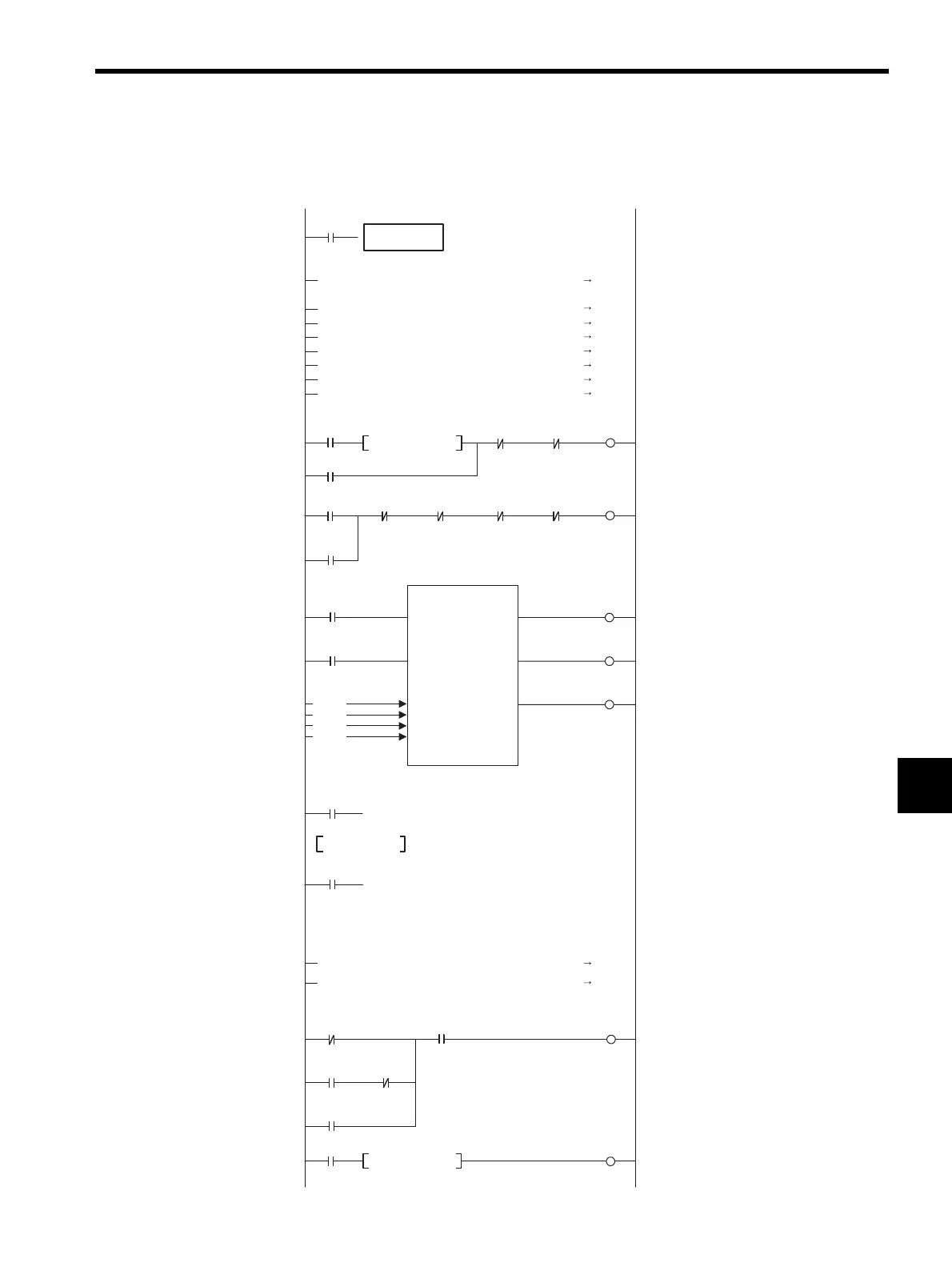
Ladder Logic Programming to Receive Messages (MSG-RCV)
The following diagram shows an example of a slave function (MSG
-
RCV) ladder logic program.
DB00021
0
DB000202
Stop
command
Command
Stop
command
Command
Stop
command
Stop
command
Force-stop by ABORT if no response is
received 60 seconds after receive starts .
T
DB000201
DB000210
DB000211
DB000212
Executing
MSG-RCV
EXECUTE
ABORT COMPLETE
DEV-TYP ERROR
PRO-TYP
CIR-NO
CH-NO
PARAM
DA00000
00006
00001
00001
00001
DB000202
The COMPLETE or ERROR coil turns
ON at completion of processing.
CPU receives the command.
DB000211
DB000212
IFON
INC DW00024
INC DW00025
DW00000
DW00026
DW00027
DW00001
At startup, set the parameters in
the first scan.
SB000003
IFON
Connection No. setting
Coil offset setting
00001
00000
00000
00000
DW00002
DW00008
DW00009
DW00010
DW00011
DW00012
DW00013
Input relay offset setting
Input register offset setting
Holding register offset setting
Write range LO
IEND
Write range HI
00000
00000
32767
$FSCAN-
L
FOR 1 =00000 to 00031 by 000001
DB000202
DB000211 DB000212
Normal
completio
n
Normal
c
om
pletion
Normal
c
om
pletion
Normal
complet
i
on
Normal
c
om
plet
ion
Normal
c
o
unter
E
rro
r
c
ount
er
Abnormal
completion
Abnormal
completion
Abnormal
completion
Abnorma
l
completion
Abnormal
completion
Execution
wait
Execution
wait
DW
register zero clear
00000
FEND
Executing
60.0
DW00030
Stop timer
SB000004 DB000202 DB000211
DB000201
DB000201
Receive start
DB000212 DB000208
Execution
wait
$ON-COIL
Specify PRO-TYP= 1 for Extended
MEMOBUS or MELSEC.
Specify PRO-TYP= 2 for no protocol.
Processing result
Status
Normal completion
DB000202
DB000208
Execution stop
Execution stop timer Execution stop
Execution wait
DB000200
DB000209DB000212
DB000208
DB00020
8
DB000209
T
60.0
DW00031
IEND
IEND
L
scan:SB 3
H
scan:SB01
DW00001
Stop
command
Command
after 60 seconds have elapsed.
The Receive instruction can be issued
Function send instruction
Status stored
Processing result stored
Abnormal completion
The BUSY coil turns ON when the
BUSY

Table of Contents

Related product manuals