EasyManua.ls Logo

YASKAWA MP920 - Page 195

YASKAWA MP920
336 pages
Print Icon
To Next Page IconTo Next Page
To Next Page IconTo Next Page
To Previous Page IconTo Previous Page
To Previous Page IconTo Previous Page
Loading...
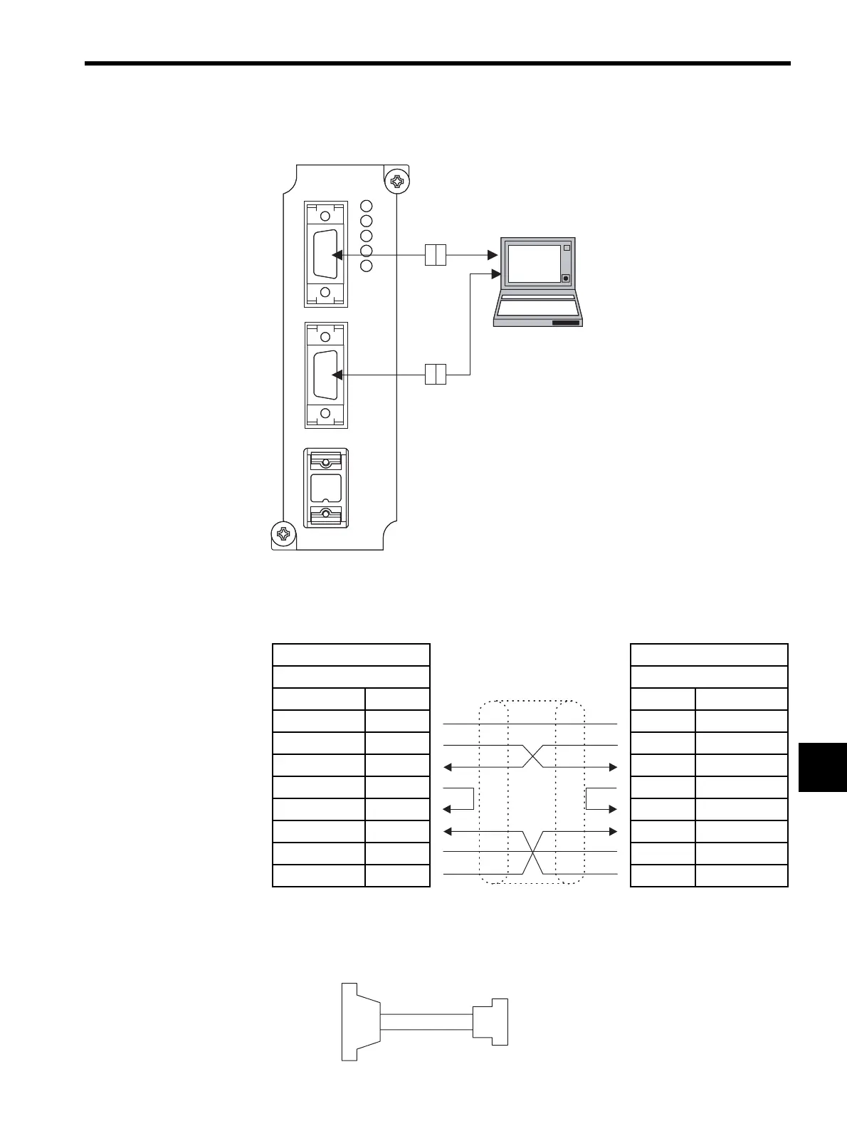
8.1 Connection to a Display Device
8-5
8
Connection Cable for NEC PC-98
CN1 and CN2 Cables
Cable model: JZMSZ-W1015-21
Relay Cable for NEC PC-98 Note
Cable model:
217IF NEC PC-98
D-sub 9-pin D-sub 25-pin
Signal Name Pin No. Pin No. Signal Name
FG
11
FG
TXD
22
TXD
RXD
33
RXD
RTS
44
RTS
CTS
55
CTS
DSR
66
DSR
SG
77
SG
DTR
920
DTR
CN2
CN1
RUN
ERR
TRX1
TRX2
TRX3
CN3
217IF
RS232/422
NEC PC-98 Note
Shield
D-sub 25-pin NEC PC-98 Note
Half-pitch connector

Table of Contents

Related product manuals