EasyManua.ls Logo

YASKAWA MP920 - Page 196

YASKAWA MP920
336 pages
Print Icon
To Next Page IconTo Next Page
To Next Page IconTo Next Page
To Previous Page IconTo Previous Page
To Previous Page IconTo Previous Page
Loading...
8 Example Communications Module Applications
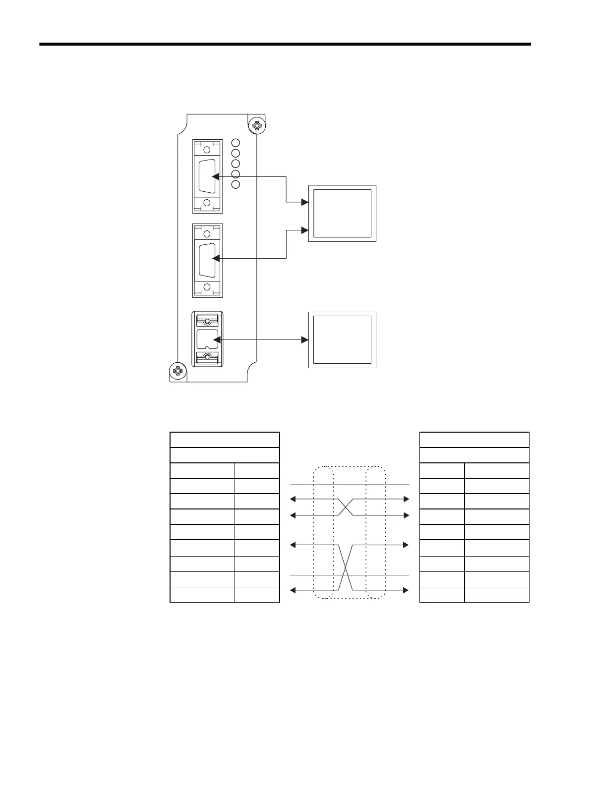
8.1.2 Cable Specifications
8-6
Connection Cables for GP-450 Display Devices
CN1 and CN2 Cables
Note: A JZMSZ-W1015-21 Cable can also be used.
217IF GP
D-sub 9-pin D-sub 25-pin
Signal Name Pin No. Pin No. Signal Name
FG
11
FG
TXD
22
SD
RXD
33
RD
RTS
44
RS
CTS
55
CS
DSR
66
N.C.
SG
77
SG
DTR
920
ER
CN2
CN1
RUN
ERR
TRX1
TRX2
TRX3
CN3
217IF
RS232/422
GP
GP
Shield

Table of Contents

Related product manuals