EasyManua.ls Logo

YASKAWA VS-656MR5 - Checking the Motor Cooling Fan; Starting Trial Operation

YASKAWA VS-656MR5
305 pages
Print Icon
To Next Page IconTo Next Page
To Next Page IconTo Next Page
To Previous Page IconTo Previous Page
To Previous Page IconTo Previous Page
Loading...
Trial Operation
6.2.5 Checking the Motor Cooling Fan
6-6
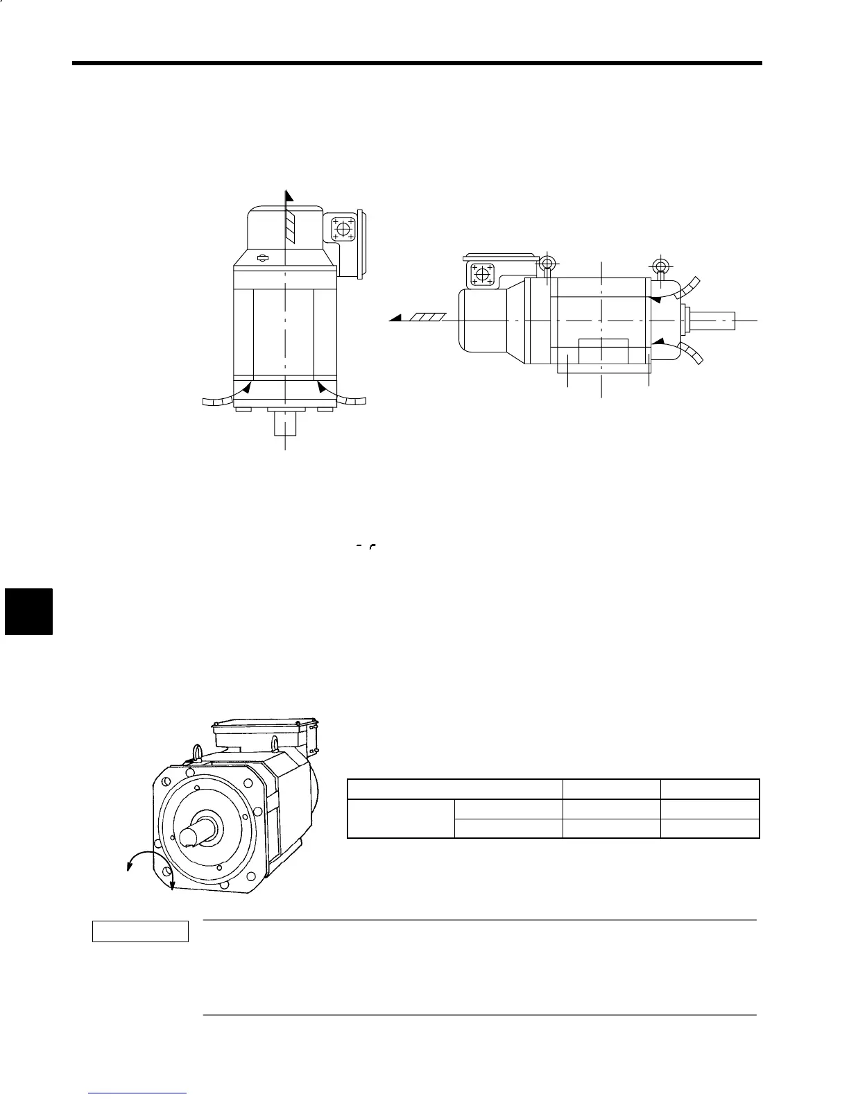
6.2.5 Checking the Motor Cooling Fan
When the main circuit power supply is turned ON, the Motor cooling fan will start to rotate. Check that
the direction of the Motor cooling flow is as shown in the Fig.6.1 . With the standard specifications configu-
ration, the cooling flow enters from the load side, and is vented on the side away from the load.
(a) Flange-mounted Motor
(b) Foot-mounted Motor
Fig 6.1 Direction of Motor Cooling Flow
6.2.6 Starting Trial Operation
When the checks after the power supply has been turned ON have been completed, send a RUN signal to
start the trial operation. When the RUN signal is sent, the 7-segment LED display on the Inverter and Con-
verter will change to ”. Gradually increase the speed reference from 0% to start the Motor.
At this time, check whether the direction of Motor rotation is correct. If the rotation direction is forward
(FWD) and the speed reference is positive, rotation should be counterclockwise seen from the load end
of the Motor shaft. If the rotation direction is reversed or if the Motor vibrates but does not rotate even when
a RUN signal is sent, the phase sequence of the power supply cable and the encoder signal wire is incorrect.
Turn OFF the power supply, check that the CHARGE indicator and the 7-segment LED displays are no
longer lit, and then check the wiring.
If the Motor rotation direction is normal, change the speed reference or switch the forward and reverse
rotation references, and check that Motor acceleration and deceleration is smooth in both the forwards and
reverse directions. At the same time, check that there is no abnormal vibration or sound coming from the
Motor. (A sound of several kHz occurring periodically from the Motor is caused by the control system,
and is not an error.)
Operation Reference +
RUN Signal
FWD CCW CW
REV CW CCW
Fig 6.2 Direction of Motor Rotation
Operating Precautions
S Check that the Motor is stopped before starting an operation. If the Motor is started while it is coasting,
the protective functions, such as main circuit overvoltage (AL-11) and overcurrent (AL-01), may op-
erate.
S Do not change the wiring or insert or remove connectors while the power supply is turned ON.
6
CCW
CW
IMPORTANT

Table of Contents

Related product manuals