EasyManua.ls Logo

YASKAWA VS-656MR5 - Control Signal Functions

YASKAWA VS-656MR5
305 pages
Print Icon
To Next Page IconTo Next Page
To Next Page IconTo Next Page
To Previous Page IconTo Previous Page
To Previous Page IconTo Previous Page
Loading...
Wiring
3.4.3 Control Signal Functions
3 -28
8CN (Option)
20 SS 10
P
+
P
+
19 *SPB 9 CPA
P
+
P
+
18 SPB 8 *CPC
N
N
17 *SPA 7 CPC
5CN
51CN/52CN
16 SPA 6 +5V
15 *SPC 5 +5V
14 SPC 4 +5V
8
CHARGE
8
CHARGE
4CN
6CN
13 *CPB 3 0V
88
6CN
12 CPB 2 0V
N1
P1
N1
P1
1CN
11 *CPA 1 0V
Encoder Method Orientation
Card
N1
N1
C
ar
d
1CN
2CN
8CN
9CN (Option)
2CN
14 7 *SPBO
13 6 SPBO
3CN
12 5 *SPAO
CN
11 4 SPAO
9CN
10CN
10 3 *SPCO
9 2 SPCO
8 1 SS
10CN (Option)
Converter Inverter
14 SIG 7
13 SIG+ 6
3CN (Option)
12 +15V 5 0V
Mti
S
Mthd
14 7
+5V
3CN
(Option)
11 4
Magnetic Sensor Method
Orientation Card
13
12
6
5
OP1
0
10 +12V 3 0V
12
1
1
5
4
+
5
V
0V
RX
9 2
1
1
10
4
3
+5V
0V
RX
8
1 SS
10
9
3
2
+5V
0
V
TX
9
8
1
+
5
V
OP2
0
V
TX
8
1
OP2 0 V
O
0
V
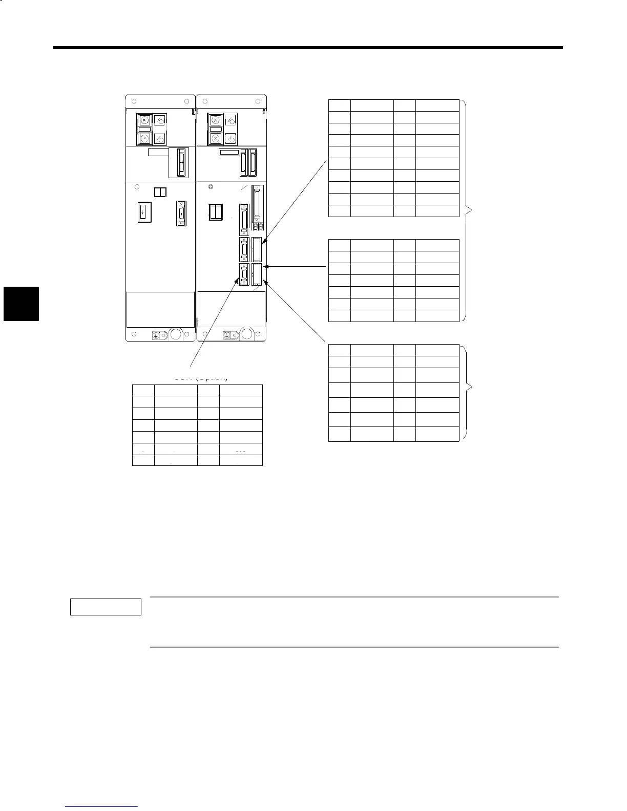
Note: Terminal arrangement is as when the connectors on the PC board are viewed from the front of the unit.
Fig 3.19 Terminal Arrangements of Control Signal Connectors (Optional)
3.4.3 Control Signal Functions
The following table outlines the functions of the control circuit signals. Use appropriate signals according
to the purpose.
The12-bit digital reference signals to 1CN-19 through 1CN-30 and the sequence input signals to 6CN-5
through 6CN-18 can be 0 V, 24 V, or external common signals. The wiring of terminals varies with the input
method. Refer to 3.4.4 Sequence Input Signal Circuits for details.
3
IMPORTANT

Table of Contents

Related product manuals