EasyManua.ls Logo

YASKAWA VS-656MR5 - Open Chassis Type

YASKAWA VS-656MR5
305 pages
Print Icon
To Next Page IconTo Next Page
To Next Page IconTo Next Page
To Previous Page IconTo Previous Page
To Previous Page IconTo Previous Page
Loading...
Handling
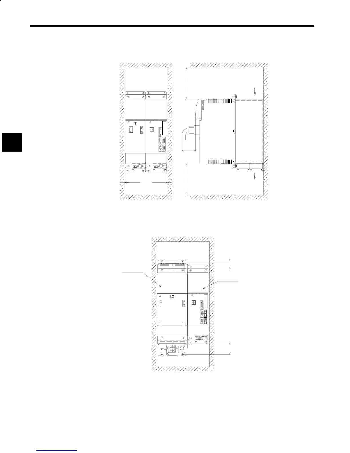
2.3.2 Open Chassis Type
2-8
2.3.2 Open Chassis Type
Converter
Inverter
5 mm (0.20 inches)
or more
(a) Front View
(b) Side View
Air
Air
150 mm
(
5.91 inches)
or more
Max. 70 mm
(2.76 inches)
150 mm
(
5.91 inches)
or more
Fig 2.10 Clearances for Open Chassis Type
When using an Open-chassis Converter (11 kW or more) in combination with an Inverter (7.5 kW or less),
follow the installation procedure shown below.
28
mm
(1.1inches)
57
mm
(2.24inches)
Converter
Inverter
(11kW or more)
(7.5kW or less)
Fig 2.11 Clearances when Combining a Converter or 11 kW or More with an Inverter of
7.5 kW or Less
2

Table of Contents

Related product manuals